|
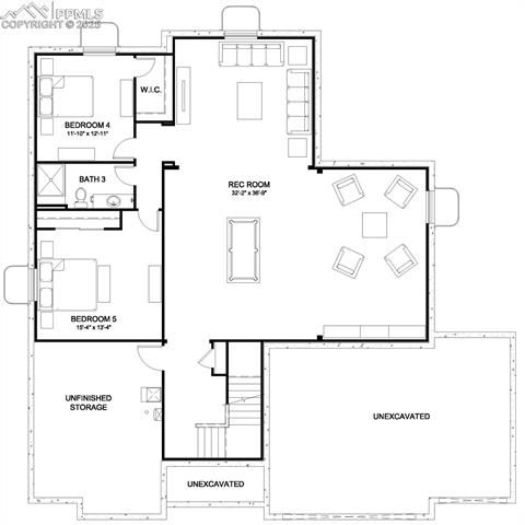
The Walter offers a distinctive take on ranch-style living, blending versatile spaces, modern finishes, and thoughtful design to create a home that feels both expansive and intimate. Set on a spacious homesite in Monument, this 5-bedroom, 3.5 bath home spans 3,879 square feet with a flexible layout perfect for entertaining or private retreats. From the moment you enter, The Walter's unique layout sets it apart. The open-concept design connects the kitchen, dining area, and great room while offering privacy with distinct living zones. The kitchen is a chef's dream, featuring an oversized island, ample storage, premium Samsung appliances, and direct access to the covered back patio for effortless indoor-outdoor living. The great room is filled with natural light from oversized windows and anchored by a central fireplace for a warm, welcoming feel. A private study offers a quiet space for a home office, library, or creative retreat. The primary suite is a retreat within the home, featuring a spa-inspired ensuite bath with dual vanities, a freestanding soaking tub framed between them, Kohler fixtures, and lighted mirrors with adjustable color settings. Two additional bedrooms on the main level share a Jack and Jill bath, providing comfort and privacy for family or guests. The finished basement expands the home's possibilities with a large rec room, two bedrooms, and a full bath"”ideal for a guest suite or game room. Designed with the Grand Lake interior package, The Walter exudes timeless design and sophistication with white cabinetry, crisp quartz countertops, and soft, neutral flooring. High-end Samsung appliances, Kohler fixtures, and smart home features, including a video garage opener and smart doorbell, enhance modern convenience. The farmhouse-style exterior blends rustic charm with contemporary appeal. Located in Jackson Creek in Monument, this home offers mountain views, top-rated schools, and easy access to outdoor recreation. Ready for a January 2026 closing.
Property Type(s):
Single Family
| Last Updated | 12/3/2025 | Year Built | 2025 |
|---|---|---|---|
| Community | Jackson Creek | Garage Spaces | 3.0 |
| County | El Paso |
SCHOOLS
| School District | Lewis-Palmer-38 |
|---|
Price History
| Prior to Oct 16, '25 | $765,690 |
|---|---|
| Oct 16, '25 - Dec 3, '25 | $799,690 |
| Dec 3, '25 - Today | $788,190 |
Additional Details
| AIR | Central Air |
|---|---|
| AIR CONDITIONING | Yes |
| AREA | Jackson Creek |
| BASEMENT | Finished, Full, Yes |
| CONSTRUCTION | Fiber Cement, Frame, Stone |
| GARAGE | Yes |
| HEAT | Forced Air |
| LOT | 0.2531 acre(s) |
| LOT DESCRIPTION | Level |
| PARKING | Attached |
| STORIES | 1 |
| STYLE | Ranch |
| TAXES | 3036.33 |
Location
Contact us about this Property
| / | |
| We respect your online privacy and will never spam you. By submitting this form with your telephone number you are consenting for Mike Casey to contact you even if your name is on a Federal or State "Do not call List". | |
Listing provided by: Keller Williams Action Realty, LLC, 3036888300
The real estate listing information and related content displayed on this site is provided exclusively for consumers’ personal, non-commercial use and may not be used for any purpose other than to identify prospective properties consumers may be interested in purchasing. This information and related content is deemed reliable but is not guaranteed accurate by the Pikes Peak REALTOR® Services Corp.

This IDX solution is (c) Diverse Solutions 2025.