|
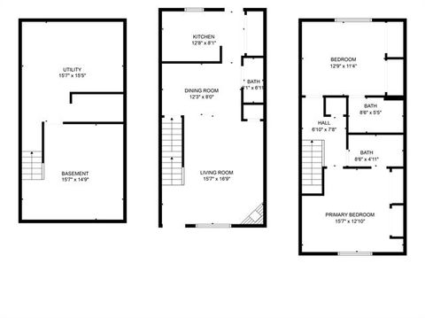
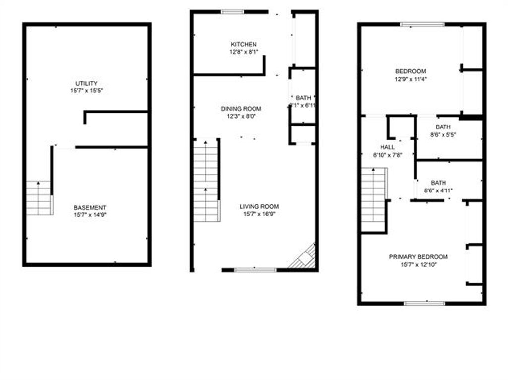
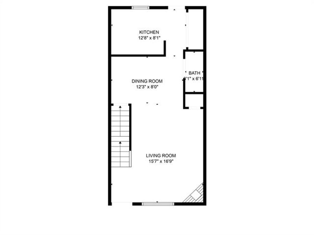
Two-story townhome with partially finished basement in desirable Pinon Bluffs. This unit overlooks Pinon Valley Park and has a beautiful view of Pikes Peak. New luxury vinyl wood laminate throughout the main level. New white six-panel interior doors accent the freshly painted walls. There is a window seat in the living room to look out over the park and view the mountains. Rustic cedar accents the woodburning fireplace in the living room. The kitchen features new cabinetry, new countertops, and stainless steel appliances. There is a pantry cabinet in the kitchen and another large pantry/closet off of the kitchen by the back door that leads to the enclosed patio and storage closet. A dining area off of the living room and a half bath complete the main level. Upstairs, there are 2 master suites, one with its own 3/4 bath and the other shares the hall full bath. Skylights in both bathrooms provide natural light. The carpeting and pad is new on the upper level and also in the basement rec room. There is also a large unfinished portion of the basement for storage, and a laundry area with a sink. The laundry was previously on the main floor where the pantry closet is. There is covered carport parking in front, and guest parking as well. Ready to move into - check it out today!
Property Type(s):
Condo/Townhouse/Co-Op
| Last Updated | 12/3/2025 | Year Built | 1986 |
|---|---|---|---|
| Community | Pinon Bluffs | Garage Spaces | 1.0 |
| County | El Paso |
SCHOOLS
| School District | Colorado Springs 11 |
|---|
Additional Details
| AIR | None |
|---|---|
| AREA | Pinon Bluffs |
| BASEMENT | Full, Yes |
| CONSTRUCTION | Brick, Masonite, Stucco |
| FIREPLACE | Yes |
| GARAGE | Yes |
| HEAT | Forced Air, Natural Gas |
| LOT | 719 sq ft |
| STORIES | 2 |
| STYLE | 2 Levels |
| TAXES | 795.64 |
| VIEW | Yes |
| VIEW DESCRIPTION | Mountain(s) |
Location
Contact us about this Property
| / | |
| We respect your online privacy and will never spam you. By submitting this form with your telephone number you are consenting for Mike Casey to contact you even if your name is on a Federal or State "Do not call List". | |
Listing provided by: Harris Group Realty Inc, 7192279900
The real estate listing information and related content displayed on this site is provided exclusively for consumers’ personal, non-commercial use and may not be used for any purpose other than to identify prospective properties consumers may be interested in purchasing. This information and related content is deemed reliable but is not guaranteed accurate by the Pikes Peak REALTOR® Services Corp.

This IDX solution is (c) Diverse Solutions 2025.