|
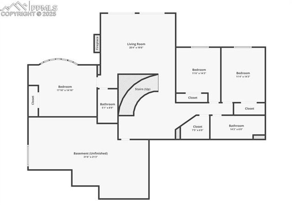
FULL RENOVATION IN 2023 "” LUXURY RANCHER WITH A WALKOUT "” RARE FIND IN MOUNTAIN SHADOWS Perched in one of the most desired neighborhoods in Colorado Springs, this fully renovated home is as stunning as it is functional. With 4 bedrooms, 3.5 baths, generous living and entertaining areas, a xeriscaped yard, and an oversized 3-car garage, this property checks all the boxes. Step into the main level and enjoy NATURAL HARDWOOD flooring, SOARING ceilings and walls of windows with custom treatments, and a STONE fireplace anchoring the space. The chef-inspired kitchen shines with DOUBLE ovens, GAS range, QUARTZ counters, a dry bar, and thoughtful design fixtures and finishes. Even chores look good here"”your boujee utility room offers an apron sink, granite counters, and storage that keeps life organized. From the kitchen, step out to your private outdoor oasis. Grill, gather, and unwind with an outdoor kitchen, fire pit, and serene mountain views. A main-level office framed by sliding glass barn doors creates an ideal workspace or quiet retreat. The primary suite features all the bells and whistles: dual vanities, a deep soaking tub, heated floors, and a spa-like shower creating a daily sanctuary. The walk-in closet is spacious and a private deck off the suite delivers private and peaceful mountain views. Follow the winding staircase to the walkout basement, where comfort continues. A large living area with impressive brick wall with fireplace and sliding doors opens to another outdoor living space...including an epic custom built treehouse complete with climbing wall and slide just waiting for new memories to be made! The downstairs features three additional bedrooms, two full baths, and a versatile creative zone perfect for homework or quiet focus. A generous bonus room adds even more flexibility"”ideal for a gym, playroom, or extra storage. This house offers all the things...the one you stop scrolling for. Welcome HOME.
Property Type(s):
Single Family
| Last Updated | 12/4/2025 | Year Built | 1992 |
|---|---|---|---|
| Community | Mountain Shadows | Garage Spaces | 3.0 |
| County | El Paso |
SCHOOLS
| School District | Colorado Springs 11 |
|---|
Additional Details
| AIR | Ceiling Fan(s), Central Air |
|---|---|
| AIR CONDITIONING | Yes |
| AREA | Mountain Shadows |
| BASEMENT | Full, Walk-Out Access, Yes |
| CONSTRUCTION | Brick, Frame, Stucco |
| FIREPLACE | Yes |
| GARAGE | Yes |
| HEAT | Forced Air, Natural Gas |
| LOT | 0.4144 acre(s) |
| LOT DESCRIPTION | Sloped, Wooded |
| PARKING | Garage Door Opener, Attached |
| STORIES | 1 |
| STYLE | Ranch |
| TAXES | 3048.28 |
| VIEW | Yes |
| VIEW DESCRIPTION | Mountain(s) |
Location
Contact us about this Property
| / | |
| We respect your online privacy and will never spam you. By submitting this form with your telephone number you are consenting for Mike Casey to contact you even if your name is on a Federal or State "Do not call List". | |
Listing provided by: Jeremiah Cope, 2103674347
The real estate listing information and related content displayed on this site is provided exclusively for consumers’ personal, non-commercial use and may not be used for any purpose other than to identify prospective properties consumers may be interested in purchasing. This information and related content is deemed reliable but is not guaranteed accurate by the Pikes Peak REALTOR® Services Corp.

This IDX solution is (c) Diverse Solutions 2025.