|
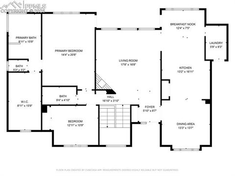
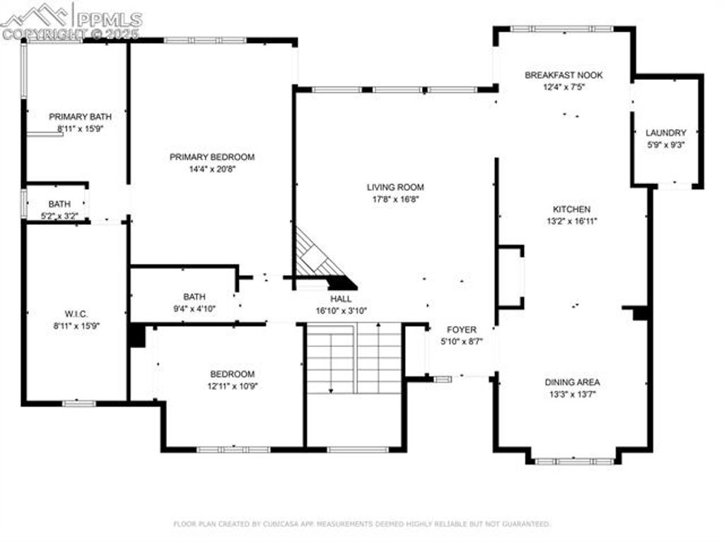
Rare opportunity to own a beautiful, updated home featuring many upgrades with direct access to over 100 acres of open space and mountain views. Enjoy an open concept kitchen filled with natural light from skylights and equipped with stainless steel appliances. Granite countertops, a travertine backsplash, an island with a prep sink, and an induction cooktop create a chef's dream workspace. Soft-close cabinets with custom pullouts, a large pantry, and abundant storage make this kitchen both beautiful and functional. Step into the spacious, serene primary bedroom with an attached five-piece bath and an oversized walk-in closet. The main level also features a large living room with a gas fireplace, formal dining room with a wine cooler, another bedroom which can also be used as an office, oak hardwood floors, nine-foot ceilings, tile, and new carpet, plus a laundry room with washer and dryer included. Downstairs, the generous family room welcomes you with stone accents and a convenient kitchenette, perfect for entertaining or relaxing nights in. Three additional bedrooms, a bath with double sinks, a game room/flex space, and a utility room with extra storage ensure there is room for everyone. Outdoors, the expansive lot is beautifully landscaped, offering plenty of space to play, garden, or unwind. The attached three-car garage provides even more storage. From your private deck, spend evenings enjoying breathtaking sunsets or watch the Thunderbird jets soar overhead during the Air Force Academy graduation. This peaceful Gleneagle home is minutes from the Air Force Academy and I-25, with shopping, restaurants, and entertainment in nearby Northgate and Monument. It is a unique blend of tranquility, convenience, and outdoor adventure with an unmatched lifestyle in a sought-after community. Please watch the 3D Matterport. Schedule your showing soon so you don't miss out on this gorgeous home!
Property Type(s):
Single Family
Last Updated | 10/20/2025 | Year Built | 1997 |
---|---|---|---|
Community | Donala | Garage Spaces | 3.0 |
County | El Paso |
SCHOOLS
School District | Academy-20 |
---|
Price History
Prior to Oct 11, '25 | $825,000 |
---|---|
Oct 11, '25 - Today | $810,000 |
Additional Details
AIR | Ceiling Fan(s), Central Air |
---|---|
AIR CONDITIONING | Yes |
AREA | Donala |
CONSTRUCTION | Stucco |
FIREPLACE | Yes |
GARAGE | Yes |
HEAT | Forced Air, Natural Gas |
LOT | 0.47 acre(s) |
LOT DESCRIPTION | Cul-de-sac |
PARKING | Garage Door Opener, Attached |
STORIES | 1 |
STYLE | Ranch |
TAXES | 4220.42 |
VIEW | Yes |
VIEW DESCRIPTION | Mountain(s) |
Location
Contact us about this Property
/ | |
We respect your online privacy and will never spam you. By submitting this form with your telephone number you are consenting for Mike Casey to contact you even if your name is on a Federal or State "Do not call List". |
Listing provided by: Harman Real Estate Group, 7193147635
The real estate listing information and related content displayed on this site is provided exclusively for consumers’ personal, non-commercial use and may not be used for any purpose other than to identify prospective properties consumers may be interested in purchasing. This information and related content is deemed reliable but is not guaranteed accurate by the Pikes Peak REALTOR® Services Corp.
This IDX solution is (c) Diverse Solutions 2025.