|
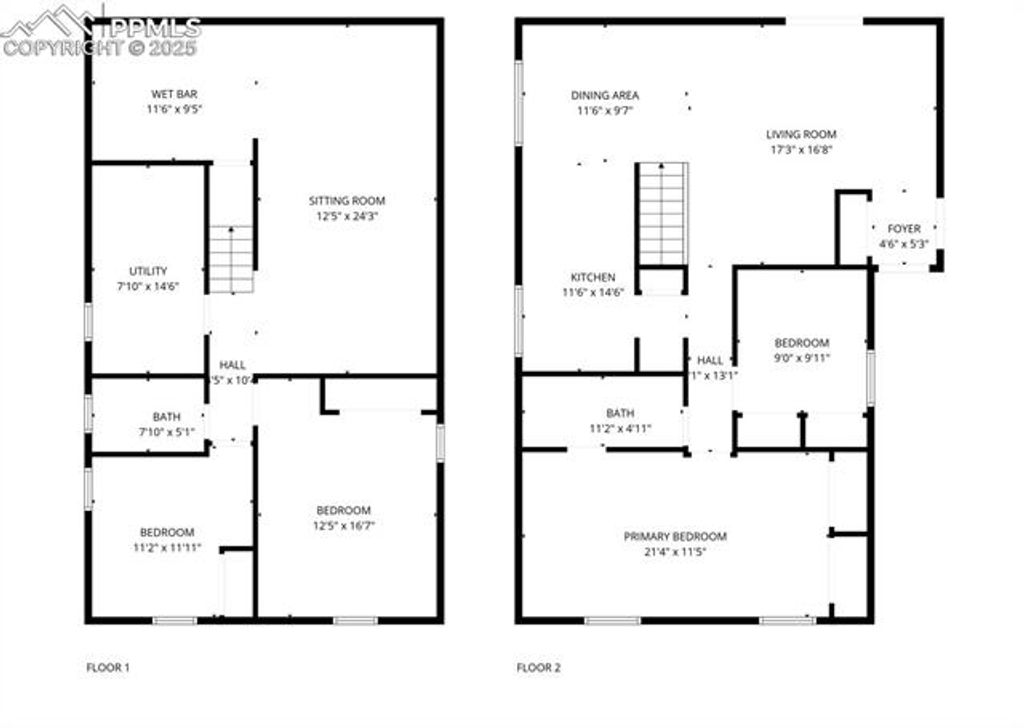
Move-In Ready 4-Bed, 2-Bath Home with Finished Basement! Welcome home to this beautifully maintained 4-bedroom, 2-bath property featuring an updated kitchen and bathrooms, gorgeous hardwood floors, and an inviting open layout. Enjoy extra living space in the finished basement complete with a wet bar, perfect for entertaining or relaxing. Outside, you'll find an oversized deck surrounded by mature trees, an oversize driveway with plenty of parking, and a peaceful setting just minutes from Fort Carson. Truly move-in ready and full of charm"”don't miss your chance to make this home yours!
Property Type(s):
Single Family
Last Updated | 10/9/2025 | Year Built | 1962 |
---|---|---|---|
Community | Stratmoor Village | Garage Spaces | 2.0 |
County | El Paso |
SCHOOLS
School District | Harrison-2 |
---|
Additional Details
AIR | Ceiling Fan(s) |
---|---|
AIR CONDITIONING | Yes |
AREA | Stratmoor Village |
BASEMENT | Finished, Full, Yes |
CONSTRUCTION | Brick |
GARAGE | Yes |
HEAT | Baseboard, Hot Water, Radiant |
LOT | 6826 sq ft |
LOT DESCRIPTION | Level |
PARKING | Attached |
STORIES | 1 |
STYLE | Ranch |
TAXES | 1349.24 |
Location
Contact us about this Property
/ | |
We respect your online privacy and will never spam you. By submitting this form with your telephone number you are consenting for Mike Casey to contact you even if your name is on a Federal or State "Do not call List". |
Listing provided by: Exp Realty LLC, 8884402724
The real estate listing information and related content displayed on this site is provided exclusively for consumers’ personal, non-commercial use and may not be used for any purpose other than to identify prospective properties consumers may be interested in purchasing. This information and related content is deemed reliable but is not guaranteed accurate by the Pikes Peak REALTOR® Services Corp.
This IDX solution is (c) Diverse Solutions 2025.