|
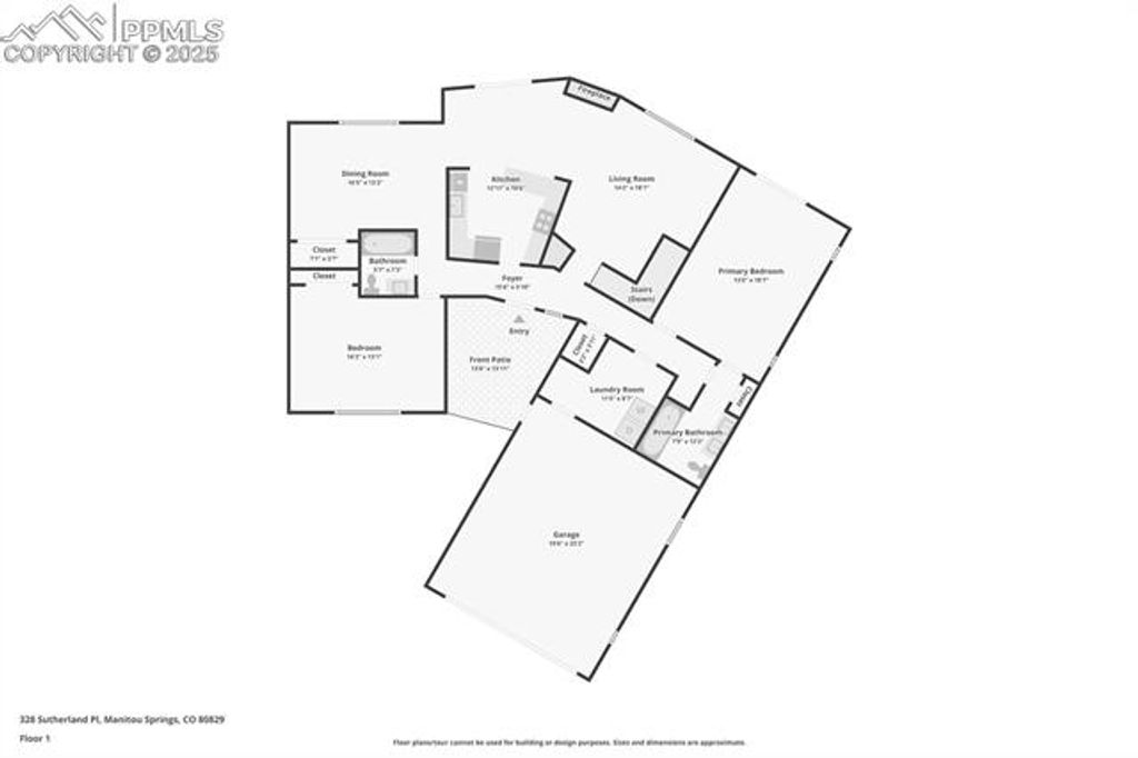
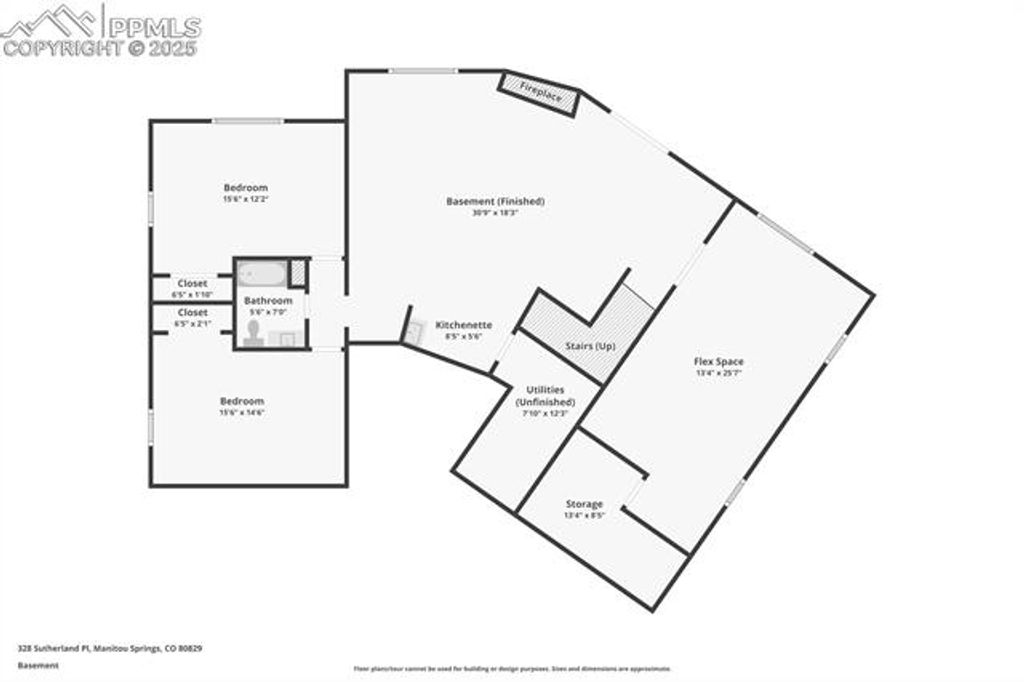
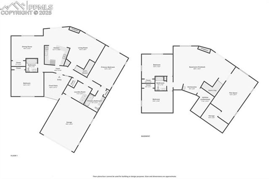
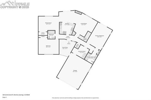
Views? Check. Spacious Rooms? Check. Yard big enough for a trampoline or a dog? Check. 3 bathrooms? Check. Solar? Check. EV charger in garage? Check. More views? Check. As Stefan from Saturday Night Live said, "This place has everything." The Crystal Hills neighborhood of Manitou Springs awaits you! Location, space AND views! This property has been well cared for and updated. So much flexible space - you could turn the secondary family room space in the basement into a home gym, an art studio, a huge office, or another bedroom. One downstairs bedroom is currently used as a sound studio. Walk out the basement into a yard with just enough grass to cool things down in the summer. Upper deck has a large awning for sunny afternoons. Terraced yard goes into Deer Valley Park, where you'll see lots of deer, a few bears, plus the occasional fox, a few thousand hummingbirds, and other woodland creatures. But wait, there's more!! You'll be so close to downtown Manitou, where residents are offered 50 hours per year of free parking in the historic shopping and restaurant district! Trails into Red Rock Open Space are just a quick walk from your front door. Please note - main level of home was originally designed for a person with a wheelchair. Light switches are lower, doors are wider for easy access.
Property Type(s):
Single Family
| Last Updated | 12/1/2025 | Year Built | 1970 |
|---|---|---|---|
| Community | Crystal Hills | Garage Spaces | 2.0 |
| County | El Paso |
SCHOOLS
| School District | Manitou Springs-14 |
|---|
Price History
| Prior to Sep 25, '25 | $889,000 |
|---|---|
| Sep 25, '25 - Oct 11, '25 | $879,000 |
| Oct 11, '25 - Dec 1, '25 | $867,000 |
| Dec 1, '25 - Today | $855,000 |
Additional Details
| AIR | Central Air |
|---|---|
| AIR CONDITIONING | Yes |
| AREA | Crystal Hills |
| BASEMENT | Full, Walk-Out Access, Yes |
| CONSTRUCTION | Masonite |
| FIREPLACE | Yes |
| GARAGE | Yes |
| HEAT | Forced Air |
| LOT | 0.2571 acre(s) |
| PARKING | Attached |
| STORIES | 1 |
| STYLE | Ranch |
| TAXES | 3295.65 |
| VIEW | Yes |
| VIEW DESCRIPTION | Mountain(s) |
Location
Contact us about this Property
| / | |
| We respect your online privacy and will never spam you. By submitting this form with your telephone number you are consenting for Mike Casey to contact you even if your name is on a Federal or State "Do not call List". | |
Listing provided by: Manchester Properties, LLC, 7193383203
The real estate listing information and related content displayed on this site is provided exclusively for consumers’ personal, non-commercial use and may not be used for any purpose other than to identify prospective properties consumers may be interested in purchasing. This information and related content is deemed reliable but is not guaranteed accurate by the Pikes Peak REALTOR® Services Corp.

This IDX solution is (c) Diverse Solutions 2025.