|
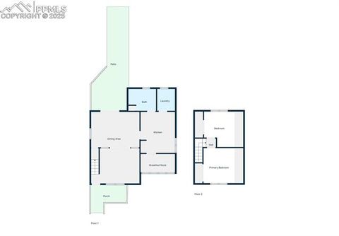
Don't miss this charming, updated downtown 2-bedroom, 1-bathroom historic home. This property offers 1,212 square feet with lots of historic charm throughout mixed with beautiful updates. When you walk up to the property you are greeted with a nostalgic covered porch and walk into the historic front rooms with built-ins and hardwood floors. These rooms lead to the beautifully kitchen with upgraded flooring, cabinets, counters and stainless-steel appliances including a gas range with a double oven. New refrigerator was just added 2025. There is a breakfast nook just off the kitchen with natural light from the skylight. Upgraded Samsung washer and dryer are also included. There are many other updates throughout the home. As you tour the home, you will also notice the other historic details that have been maintained. The upstairs bedrooms have new carpet. The bathroom has new tile and a jetted tub. Additionally, the interior was freshly painted in 2024. The roof was replaced in 2014, the water heater was replaced in 2015, and the furnace was replaced in 2009 with yearly inspections. Summer of 2025, the main sewer line has also been repaired/replaced where needed. The fenced backyard has matured landscaping providing shade and visionary opportunity for customizing to your liking. Property is one block away from D-11's Montessori School (Buena Vista Elementary). Don't miss out on this gem of a property!
Property Type(s):
Single Family
| Last Updated | 1/8/2026 | Year Built | 1895 |
|---|---|---|---|
| Community | West Colorado Springs | County | El Paso |
SCHOOLS
| School District | Colorado Springs 11 |
|---|
Price History
| Prior to Jan 8, '26 | $399,000 |
|---|---|
| Jan 8, '26 - Today | $389,000 |
Additional Details
| AIR | Ceiling Fan(s) |
|---|---|
| AIR CONDITIONING | Yes |
| AREA | West Colorado Springs |
| BASEMENT | Crawl Space |
| CONSTRUCTION | Wood Siding |
| HEAT | Forced Air, Natural Gas |
| LOT | 4452 sq ft |
| LOT DESCRIPTION | Level, Sloped, Wooded |
| STORIES | 2 |
| STYLE | 2 Levels |
| TAXES | 1313.26 |
| VIEW | Yes |
| VIEW DESCRIPTION | Mountain(s) |
Location
Contact us about this Property
| / | |
| We respect your online privacy and will never spam you. By submitting this form with your telephone number you are consenting for Mike Casey to contact you even if your name is on a Federal or State "Do not call List". | |
Listing provided by: RE/MAX Real Estate Group LLC, 7195347900
The real estate listing information and related content displayed on this site is provided exclusively for consumers’ personal, non-commercial use and may not be used for any purpose other than to identify prospective properties consumers may be interested in purchasing. This information and related content is deemed reliable but is not guaranteed accurate by the Pikes Peak REALTOR® Services Corp.

This IDX solution is (c) Diverse Solutions 2026.