|
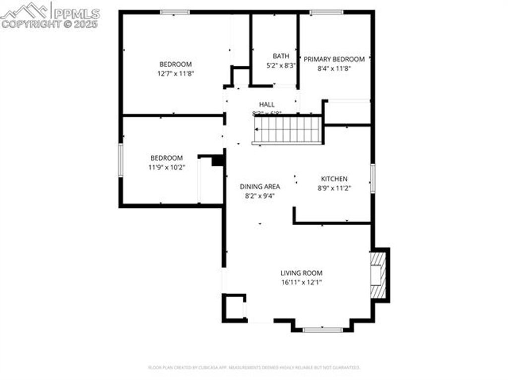
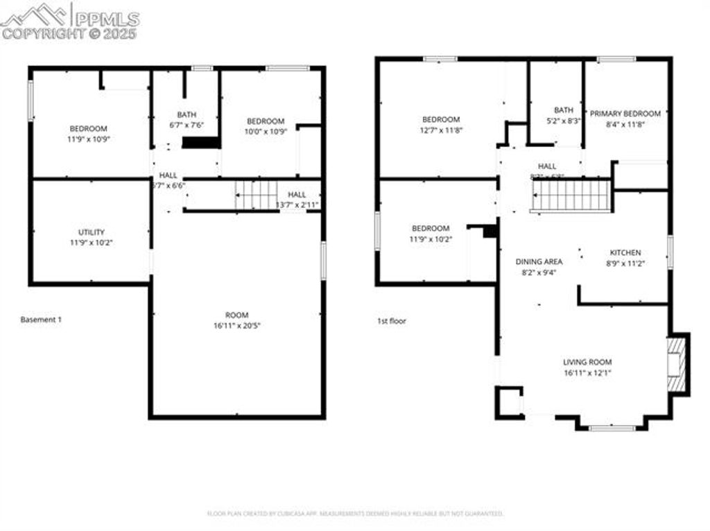
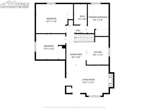
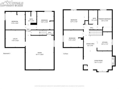
?Welcome to this fantastic opportunity in the desirable Oak Valley Ranch neighborhood on the beautiful West Side! This well-loved home, built in 1982, offers a spacious layout and convenient location, perfect for those seeking comfort and accessibility. Enjoy 1,824 total square feet, including a full, finished basement that adds incredible versatility. This home boasts 5 generously sized bedrooms and 2 full bathrooms, providing ample space for family, guests, or a home office. Gather around the warm, inviting wood-burning fireplace located on the main level"”perfect for those chilly Colorado evenings! Stay comfortable year-round with efficient forced air natural gas heating and refreshing central air conditioning. The property also features a fully fenced backyard, ideal for pets, children, or outdoor entertaining. You'll be just minutes away from the trails and natural beauty of Ute Valley Park, perfect for hiking, biking, and enjoying the outdoors. Commuter's dream, experience easy, quick access to I-25, making your commute a breeze to Downtown or military installations. This home is ready for its next owner to make it their own! Don't miss out on this fantastic West Side location with a great floor plan!
Property Type(s):
Single Family
| Last Updated | 12/12/2025 | Year Built | 1982 |
|---|---|---|---|
| Community | Oak Valley Ranch | Garage Spaces | 2.0 |
| County | El Paso |
SCHOOLS
| School District | Colorado Springs 11 |
|---|
Additional Details
| AIR | Ceiling Fan(s), Central Air |
|---|---|
| AIR CONDITIONING | Yes |
| AREA | Oak Valley Ranch |
| BASEMENT | Full, Yes |
| CONSTRUCTION | Masonite, Wood Siding |
| FIREPLACE | Yes |
| GARAGE | Yes |
| HEAT | Forced Air |
| LOT | 0.27 acre(s) |
| LOT DESCRIPTION | Wooded |
| PARKING | Attached |
| STORIES | 1 |
| STYLE | Ranch |
| TAXES | 1472 |
| VIEW | Yes |
| VIEW DESCRIPTION | Mountain(s) |
Location
Contact us about this Property
| / | |
| We respect your online privacy and will never spam you. By submitting this form with your telephone number you are consenting for Mike Casey to contact you even if your name is on a Federal or State "Do not call List". | |
Listing provided by: Kendall Roth Sukach, 7192380097
The real estate listing information and related content displayed on this site is provided exclusively for consumers’ personal, non-commercial use and may not be used for any purpose other than to identify prospective properties consumers may be interested in purchasing. This information and related content is deemed reliable but is not guaranteed accurate by the Pikes Peak REALTOR® Services Corp.

This IDX solution is (c) Diverse Solutions 2025.