|
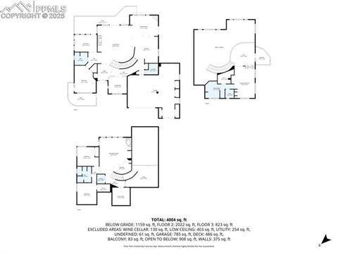
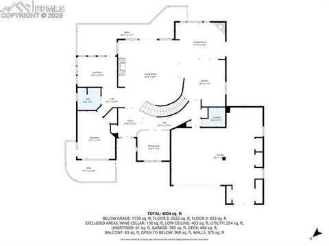
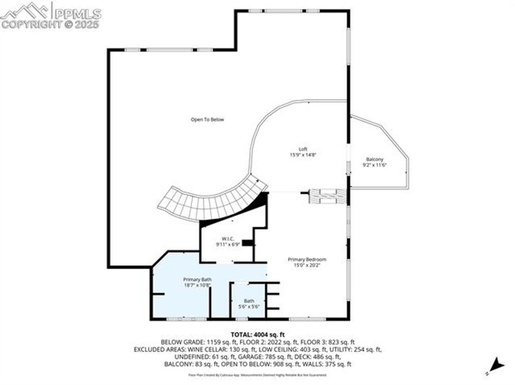
A MILLION DOLLAR SETTING is yours with this prestigious custom home in the exclusive neighborhood of The Spires on Cheyenne Mountain, in award winning Cheyenne Mountain School District 12. Situated on .7 acres with extensive OUTDOOR LIVING AREAS including fireplace, in ground hot tub, outdoor kitchen, paths throughout the property, and backing to open space, this home is designed for fabulous PRIVACY and year round enjoyment. Inside you enter to an impressive 2 story vaulted Great Room open to the Kitchen and with great views of the back yard and walk out to the large back deck. A 2 story stone fireplace, built ins and a sweeping curved staircase are also WOW features of this space. The main floor also features a Bedroom, Bath, Sun Room encased in windows, and Formal Dining Room with built ins. You can't miss the enormous Eating Area off the Gourmet Kitchen with a second fireplace, wet bar area with beverage frig, Thermador, Jenn Air and Kitchenaid stainless appliances, cherry cabinets, granite counters and large pantry. Beautiful cherry floors cover much of the first floor. The second floor features a Master Get-A-Way with a third fireplace, Office with built in desk, Master Bedroom with a wet bar and small frig and a 5 piece Master Bath and walk in closet. The basement has a spacious Family Room that walks out to the back yard and offers a wet bar with mini frig, the 4th fireplace and built ins. 2 Bedrooms are downstairs that share a bath. Also the bonus of an impressive wine room. There are extensive decks surrounding this house with walk outs to the decks from most of the main and upper floors. A huge 3++ car garage with loads of built ins, a heated workshop area and even a sink for clean ups. Two laundry spaces - one upstairs and one in the basement. Loads of windows to bring the spectacular outdoors in... So much to offer and an AMAZING VALUE!!!
Property Type(s):
Single Family
Last Updated | 10/3/2025 | Year Built | 1999 |
---|---|---|---|
Community | The Boulders Broadmoor | Garage Spaces | 3.0 |
County | El Paso |
SCHOOLS
School District | Cheyenne Mtn-12 |
---|
Additional Details
AIR | Attic Fan, Ceiling Fan(s), Central Air, Other |
---|---|
AIR CONDITIONING | Yes |
AREA | The Boulders Broadmoor |
BASEMENT | Crawl Space, Partial, Walk-Out Access, Yes |
CONSTRUCTION | Frame, Stucco |
FIREPLACE | Yes |
GARAGE | Yes |
HEAT | Forced Air, Natural Gas |
LOT | 0.6933 acre(s) |
LOT DESCRIPTION | Cul-de-sac, Wooded |
PARKING | Garage Door Opener, Attached |
STORIES | 1 |
STYLE | 1.5 Story |
TAXES | 4307.68 |
Location
Contact us about this Property
/ | |
We respect your online privacy and will never spam you. By submitting this form with your telephone number you are consenting for Mike Casey to contact you even if your name is on a Federal or State "Do not call List". |
Listing provided by: ERA Shields Real Estate, 7195763600
The real estate listing information and related content displayed on this site is provided exclusively for consumers’ personal, non-commercial use and may not be used for any purpose other than to identify prospective properties consumers may be interested in purchasing. This information and related content is deemed reliable but is not guaranteed accurate by the Pikes Peak REALTOR® Services Corp.
This IDX solution is (c) Diverse Solutions 2025.