|
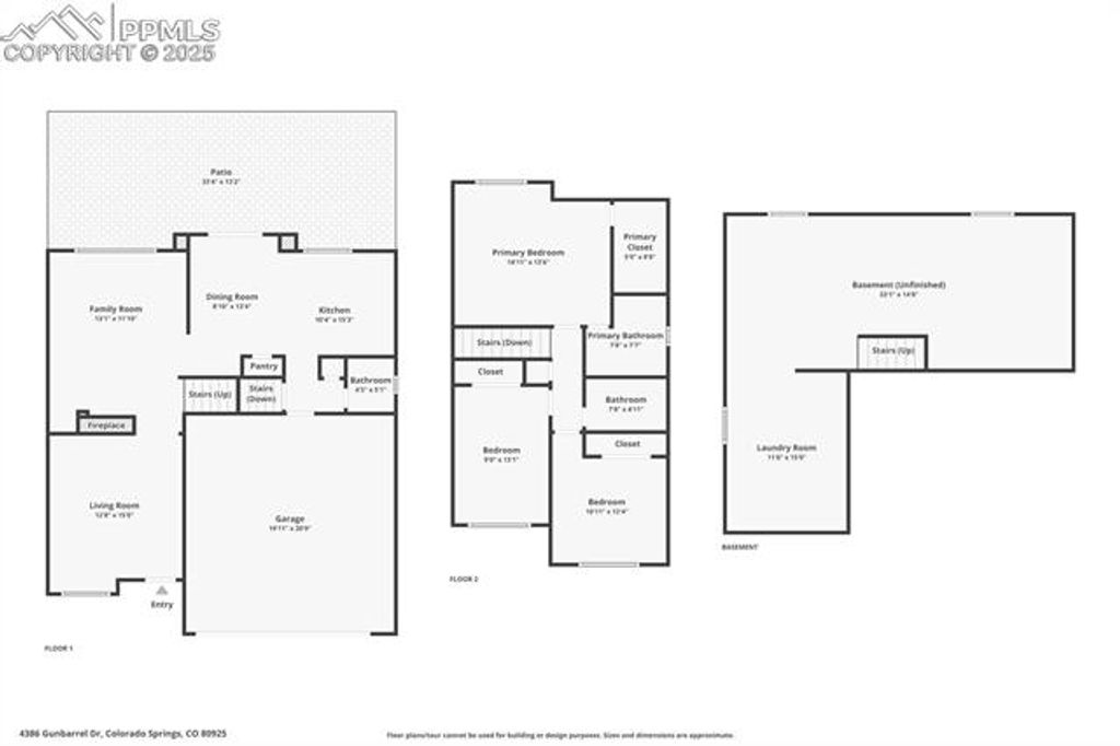
Nestled in a highly desirable neighborhood with parks and schools just minutes away, this spacious almost 2,300 sq. ft. 2-story home offers the perfect blend of eco-conscious living and everyday comfort. Step inside to find a bright and open floor plan featuring a spacious living room, a generously sized primary bedroom, and custom wooden accent walls and valances that add warmth and character throughout. Enjoy year-round comfort with central air, a whole-house fan, humidifier, and water softener"”all included for your convenience. The outdoor space is a gardener's dream: organic, chemical-free garden beds filled with established perennial flowers, fruits, veggies and herbs, a natural composting system, and a pergola over the patio. This low-maintenance, eco-friendly landscape is both beautiful and sustainable. Energy savings are built in with fully paid-off Tesla solar panels, significantly lowering your utility bills while reducing your carbon footprint. The attached 2 car garage, with RV parking, is also a functional workspace complete with built-in shelving, tool storage, and ample room for projects or hobbies. Downstairs, the unfinished basement offers rough-in plumbing and a blank canvas ready for your creative vision"”home gym, entertainment space, guest suite"”the possibilities are endless. Don't miss this rare opportunity to own a wonderful home that combines thoughtful upgrades, sustainable features, and a prime location. Schedule your showing today and imagine the lifestyle that awaits!
Property Type(s):
Single Family
Last Updated | 10/17/2025 | Year Built | 1997 |
---|---|---|---|
Community | Colorado Centre | Garage Spaces | 2.0 |
County | El Paso |
SCHOOLS
School District | Widefield-3 |
---|
Additional Details
AIR | Attic Fan, Ceiling Fan(s), Central Air |
---|---|
AIR CONDITIONING | Yes |
AREA | Colorado Centre |
BASEMENT | Full, Yes |
CONSTRUCTION | Masonite |
FIREPLACE | Yes |
GARAGE | Yes |
HEAT | Active Solar, Forced Air, Natural Gas |
LOT | 5423 sq ft |
LOT DESCRIPTION | Level, Wooded |
PARKING | Garage Door Opener, Attached |
STORIES | 2 |
STYLE | 2 Levels |
TAXES | 1895 |
Location
Contact us about this Property
/ | |
We respect your online privacy and will never spam you. By submitting this form with your telephone number you are consenting for Mike Casey to contact you even if your name is on a Federal or State "Do not call List". |
Listing provided by: Summit Ridge Group LLC, 7192332410
The real estate listing information and related content displayed on this site is provided exclusively for consumers’ personal, non-commercial use and may not be used for any purpose other than to identify prospective properties consumers may be interested in purchasing. This information and related content is deemed reliable but is not guaranteed accurate by the Pikes Peak REALTOR® Services Corp.
This IDX solution is (c) Diverse Solutions 2025.