|
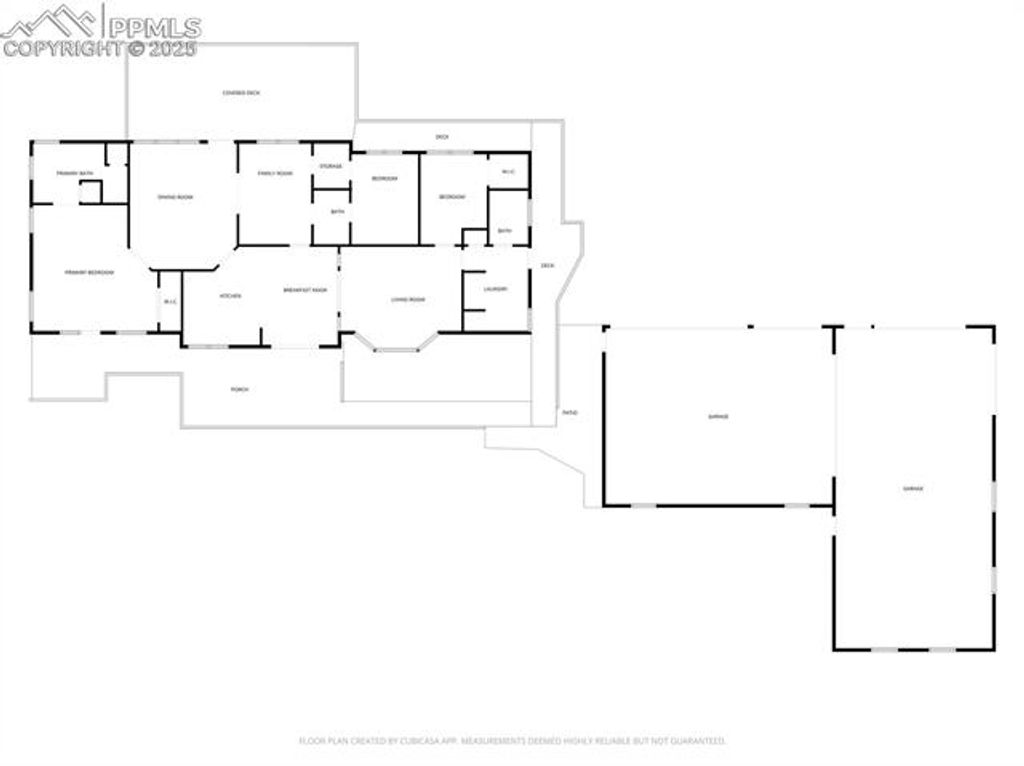
Just beyond the iconic KZ Ranch, this 1997 home offers unmatched versatility, breathtaking scenery, and extraordinary garage capacity rarely found in the Colorado mountains. With a 6+ car multi-bay garage with room for lifts, this property is ideal for car collectors, RV/UTV owners, outdoor enthusiasts, hobbyists, or anyone needing exceptional storage and workspace. The upper residence features true main-level living, including 3 bedrooms, 3 bathrooms, office, and an open, light-filled floor plan designed to capture the surrounding mountain beauty. High ceilings, generous windows, and thoughtful finishes make it comfortable for full-time living a second-home retreat with multiple income stream options. Below, a private lock-off walkout basement apartment expands your options even further. This spacious 2-bed, 2-bath unit includes ample storage and its own entrance"”ideal for multigenerational living, visiting guests, rental potential, or caretaker quarters. For those wanting even more flexibility, the layout offers a unique opportunity to add an attached in-unit garage to the lower level. Set in a sun-kissed valley where cows graze, horses gallop, and rivers wind through lush meadows beneath white-capped peaks, the drive home is a daily postcard. Yet it's also just a short drive to great restaurants, grocery stores, local shops, and essential amenities, offering the perfect blend of serenity and convenience. Whether you're seeking mountain living with room to roam, an income-producing layout, or a property tailored for your vehicles, gear, and outdoor lifestyle, this Bailey gem delivers it all.
Property Type(s):
Single Family
| Last Updated | 11/30/2025 | Year Built | 1997 |
|---|---|---|---|
| Community | Bailey | Garage Spaces | 6.0 |
| County | Park |
SCHOOLS
| School District | Platte Canyon-1 |
|---|
Additional Details
| AIR | Ceiling Fan(s) |
|---|---|
| AIR CONDITIONING | Yes |
| AREA | Bailey |
| BASEMENT | Finished, Full, Walk-Out Access, Yes |
| CONSTRUCTION | Wood Siding |
| GARAGE | Yes |
| HEAT | Forced Air, Propane |
| LOT | 2.45 acre(s) |
| LOT DESCRIPTION | Wooded |
| PARKING | Garage Door Opener, Detached |
| STORIES | 1 |
| STYLE | Ranch |
| TAXES | 2835.2 |
| VIEW | Yes |
| VIEW DESCRIPTION | Mountain(s) |
Location
Contact us about this Property
| / | |
| We respect your online privacy and will never spam you. By submitting this form with your telephone number you are consenting for Mike Casey to contact you even if your name is on a Federal or State "Do not call List". | |
Listing provided by: Compass, 7207124772
The real estate listing information and related content displayed on this site is provided exclusively for consumers’ personal, non-commercial use and may not be used for any purpose other than to identify prospective properties consumers may be interested in purchasing. This information and related content is deemed reliable but is not guaranteed accurate by the Pikes Peak REALTOR® Services Corp.

This IDX solution is (c) Diverse Solutions 2025.