|
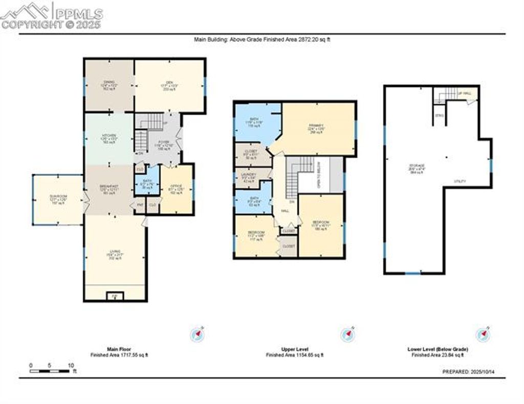
This stunning 2-story home sits on over 3 acres in the highly sought-after Latigo Trails Equestrian Subdivision, offering breathtaking views of Pikes Peak and the Front Range. The property is beautifully landscaped with a brick pathway and welcoming front porch, setting the tone for the charm you'll find inside. Enjoy relaxing in the sun porch with slate floors, the perfect spot for morning coffee or an evening glass of wine while taking in the scenery. Inside, the home features wood floors, fresh carpet, and updated bathrooms throughout. The kitchen boasts newer stainless steel appliances, granite counters, and plenty of space for entertaining. The property is designed for both comfort and lifestyle, featuring a versatile barn/shop ideal for equestrian use, hobbies, or extra storage, along with RV parking. A pool and hot tub add a retreat-like feel, making this home a true escape. The lot is filled with trees on a drip system, including cottonwood, pine, and spruce, as well as fruit trees"”cherry, apple, peach, pear, and plum. Offering the perfect blend of country living and modern convenience, this home is just minutes from shopping, dining, and amenities.
Property Type(s):
Single Family
Last Updated | 10/15/2025 | Year Built | 1989 |
---|---|---|---|
Community | The Trails | Garage Spaces | 2.0 |
County | El Paso |
SCHOOLS
School District | District 49 |
---|
Additional Details
AIR | Ceiling Fan(s) |
---|---|
AIR CONDITIONING | Yes |
AREA | The Trails |
BASEMENT | Full, Yes |
CONSTRUCTION | Masonite |
FIREPLACE | Yes |
GARAGE | Yes |
HEAT | Forced Air, Natural Gas |
LOT | 3.07 acre(s) |
LOT DESCRIPTION | Level |
PARKING | Attached |
STORIES | 2 |
STYLE | 2 Levels |
TAXES | 3127.1 |
VIEW | Yes |
VIEW DESCRIPTION | Mountain(s) |
Location
Contact us about this Property
/ | |
We respect your online privacy and will never spam you. By submitting this form with your telephone number you are consenting for Mike Casey to contact you even if your name is on a Federal or State "Do not call List". |
Listing provided by: ERA Shields Real Estate, 7195763600
The real estate listing information and related content displayed on this site is provided exclusively for consumers’ personal, non-commercial use and may not be used for any purpose other than to identify prospective properties consumers may be interested in purchasing. This information and related content is deemed reliable but is not guaranteed accurate by the Pikes Peak REALTOR® Services Corp.
This IDX solution is (c) Diverse Solutions 2025.