|
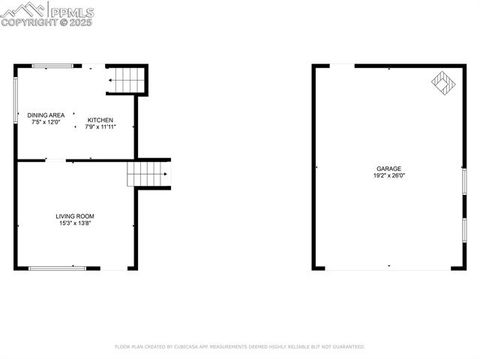
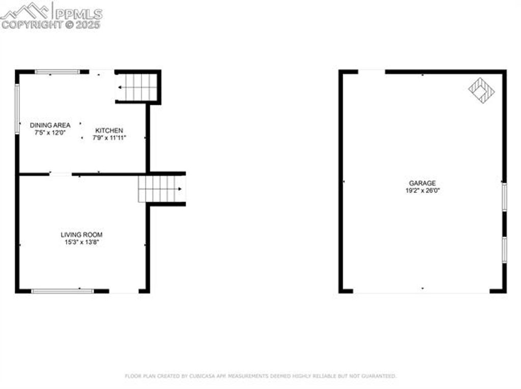
Looking for home with accommodations for extra storage, workshop, room for the handyman? This is it! Tremendous opportunity in this property! Kitchen has been remodeled with white cabinets w/ custom hardware, new range/oven, new refrigerator, new countertops and sink, flooring, light fixture and paint. Fresh paint through other areas of this home makes it "Move-in Ready!" Beautiful! Stucco sided tri-level features three bedrooms and spacious bath on upper level and 4th bedroom, bath, large rec room and laundry room in lower level. The living room and three upper bedrooms have hardwood floors. Home has oversized attached 2-car garage. For the person wanting workshop/storage accommodations, there are 2 large storage facilities on the property and ability to park an RV. Located in a quiet, centrally located neighborhood.
Property Type(s):
Single Family
| Last Updated | 1/12/2026 | Year Built | 1961 |
|---|---|---|---|
| Community | Virginia Homes | Garage Spaces | 2.0 |
| County | El Paso |
SCHOOLS
| School District | Colorado Springs 11 |
|---|
Price History
| Prior to Jan 12, '26 | $390,000 |
|---|---|
| Jan 12, '26 - Today | $380,000 |
Additional Details
| AIR | Ceiling Fan(s) |
|---|---|
| AIR CONDITIONING | Yes |
| AREA | Virginia Homes |
| CONSTRUCTION | Frame, Stucco |
| GARAGE | Yes |
| HEAT | Forced Air, Natural Gas |
| LOT | 7070 sq ft |
| LOT DESCRIPTION | Corner Lot, Level, Wooded |
| PARKING | Attached |
| STORIES | 3+ |
| STYLE | Tri-Level |
| TAXES | 1144.97 |
Location
Contact us about this Property
| / | |
| We respect your online privacy and will never spam you. By submitting this form with your telephone number you are consenting for Mike Casey to contact you even if your name is on a Federal or State "Do not call List". | |
Listing provided by: RE/MAX Real Estate Group LLC, 7195347900
The real estate listing information and related content displayed on this site is provided exclusively for consumers’ personal, non-commercial use and may not be used for any purpose other than to identify prospective properties consumers may be interested in purchasing. This information and related content is deemed reliable but is not guaranteed accurate by the Pikes Peak REALTOR® Services Corp.

This IDX solution is (c) Diverse Solutions 2026.