|
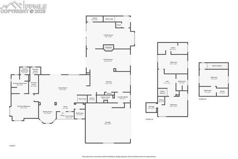
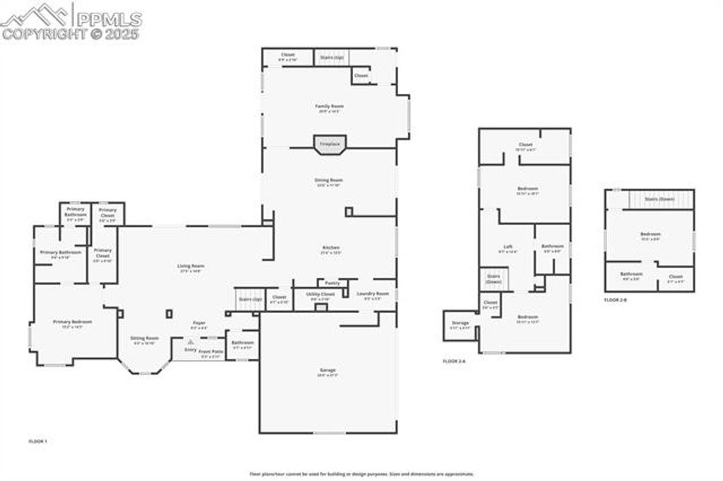
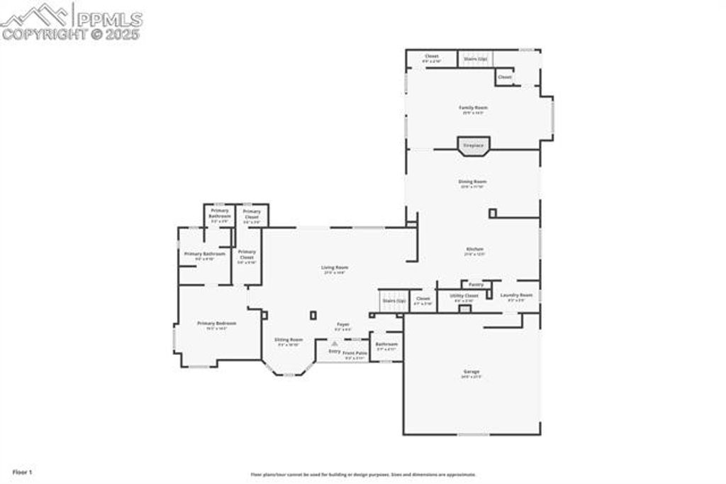
Welcome to this beautiful, original owner home nestled next to open space conserved in perpetuity. This thoughtfully designed home was created by the owner to capture views of nature from every room. Whether it is the towering view of Cheyenne Mountain or the wonderful sight of the thoughtfully designed water-wise mature garden filled with perennial flowering plants, shrubs that act as a privacy barrier, as well as mature trees to help the view seamlessly connect to the open land behind every single room in the home that has a view of nature. Perfectly positioned in the coveted Broadmoor area, this first-time offering blends comfort, design, and connection to the outdoors. The main-level primary bedroom and five-piece bath provide convenient single-level living, while the 2nd upper-level area with a separate entrance that could be locked off, features a versatile mother-in-law suite, ideal for extended family, guests, or private office space. Every window frames tranquil scenes of mountain vistas and the preserved natural hillside directly behind the home"”protected forever under a perpetual conservation easement, ensuring lasting privacy and beauty. Situated on a spacious 0.638-acre lot, the extensive property offers room to build an ADU (Accessory Dwelling Unit) or even potential for subdivision for future development opportunities. The possibilities are endless for those seeking flexibility and long-term value. Experience Colorado living at its finest"”surrounded by open space, wildlife, and views, yet just minutes from the Broadmoor Hotel, Cheyenne Mountain Conference Resort, Country Club of Colorado, Cheyenne Mountain State Park, and located within the award-winning District 12 school district. Come check out this incredible property today.
Property Type(s):
Single Family
| Last Updated | 11/15/2025 | Year Built | 1992 |
|---|---|---|---|
| Community | Oak Bridge Park | Garage Spaces | 2.0 |
| County | El Paso |
SCHOOLS
| School District | Cheyenne Mtn-12 |
|---|
Price History
| Prior to Nov 15, '25 | $885,000 |
|---|---|
| Nov 15, '25 - Today | $875,000 |
Additional Details
| AIR | Central Air |
|---|---|
| AIR CONDITIONING | Yes |
| AREA | Oak Bridge Park |
| BASEMENT | Crawl Space |
| CONSTRUCTION | Stucco |
| FIREPLACE | Yes |
| GARAGE | Yes |
| HEAT | Forced Air |
| LOT | 0.63 acre(s) |
| LOT DESCRIPTION | Corner Lot, Wooded |
| PARKING | Attached |
| STORIES | 2 |
| STYLE | 2 Levels |
| TAXES | 2790 |
| VIEW | Yes |
| VIEW DESCRIPTION | Mountain(s) |
Location
Contact us about this Property
| / | |
| We respect your online privacy and will never spam you. By submitting this form with your telephone number you are consenting for Mike Casey to contact you even if your name is on a Federal or State "Do not call List". | |
Listing provided by: REMAX PROPERTIES, 7195488600
The real estate listing information and related content displayed on this site is provided exclusively for consumers’ personal, non-commercial use and may not be used for any purpose other than to identify prospective properties consumers may be interested in purchasing. This information and related content is deemed reliable but is not guaranteed accurate by the Pikes Peak REALTOR® Services Corp.

This IDX solution is (c) Diverse Solutions 2025.