|
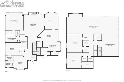
This meticulously maintained ranch-style home in Cordera offers over 4,000 square feet of comfortable, thoughtfully designed living on a quiet cul-de-sac. The curb appeal is instantly inviting, with a covered front porch, manicured lawn, and a charming stone retaining wall welcoming you inside. Beautiful real wood flooring guides you through the main level, where you'll find a rare layout featuring three bedrooms on the main floor. Two of the bedrooms share a full Jack-and-Jill bath with a tub/shower combo, and one is currently used as a home office. The spacious living room is warm and bright, highlighted by a gas fireplace with a tile surround and plenty of natural light. The dining area sits between the living room and the expansive kitchen, with a slider that opens to the backyard. The kitchen offers abundant workspace with granite counters, a gas range with double ovens, microwave, dishwasher, large walk-in pantry, and generous cabinet storage. Just off the kitchen, the oversized garage connects through a combined mudroom and laundry area, providing excellent functionality. The main-level primary suite features a serene, spa-like bathroom with a soaking tub, walk-in shower, double vanities, private water closet, and a large walk-in closet. The finished basement is ready for entertaining with a huge recreation area, pool table, wet bar, and an additional family room. Two more bedrooms and a full bath make this space ideal for guests or multi-generational living. The backyard is beautifully done with mature landscaping, a fully fenced lawn, flagstone patio, and a gravel fire-pit area"”an inviting retreat in every season. Additional perks include central A/C, window coverings, and abundant storage throughout.
Property Type(s):
Single Family
| Last Updated | 12/3/2025 | Year Built | 2011 |
|---|---|---|---|
| Community | Cordera | Garage Spaces | 2.0 |
| County | El Paso |
SCHOOLS
| School District | Academy-20 |
|---|
Price History
| Prior to Dec 3, '25 | $799,999 |
|---|---|
| Dec 3, '25 - Today | $794,999 |
Additional Details
| AIR | Ceiling Fan(s), Central Air |
|---|---|
| AIR CONDITIONING | Yes |
| AREA | Cordera |
| BASEMENT | Full, Yes |
| CONSTRUCTION | Frame, Stone, Stucco |
| FIREPLACE | Yes |
| GARAGE | Yes |
| HEAT | Forced Air, Natural Gas |
| LOT | 9017 sq ft |
| LOT DESCRIPTION | Cul-de-sac, Level |
| PARKING | Garage Door Opener, Attached |
| STORIES | 1 |
| STYLE | Ranch |
| TAXES | 2732.67 |
| VIEW | Yes |
| VIEW DESCRIPTION | Mountain(s) |
Location
Contact us about this Property
| / | |
| We respect your online privacy and will never spam you. By submitting this form with your telephone number you are consenting for Mike Casey to contact you even if your name is on a Federal or State "Do not call List". | |
Listing provided by: Exp Realty LLC, 8884402724
The real estate listing information and related content displayed on this site is provided exclusively for consumers’ personal, non-commercial use and may not be used for any purpose other than to identify prospective properties consumers may be interested in purchasing. This information and related content is deemed reliable but is not guaranteed accurate by the Pikes Peak REALTOR® Services Corp.

This IDX solution is (c) Diverse Solutions 2025.