|
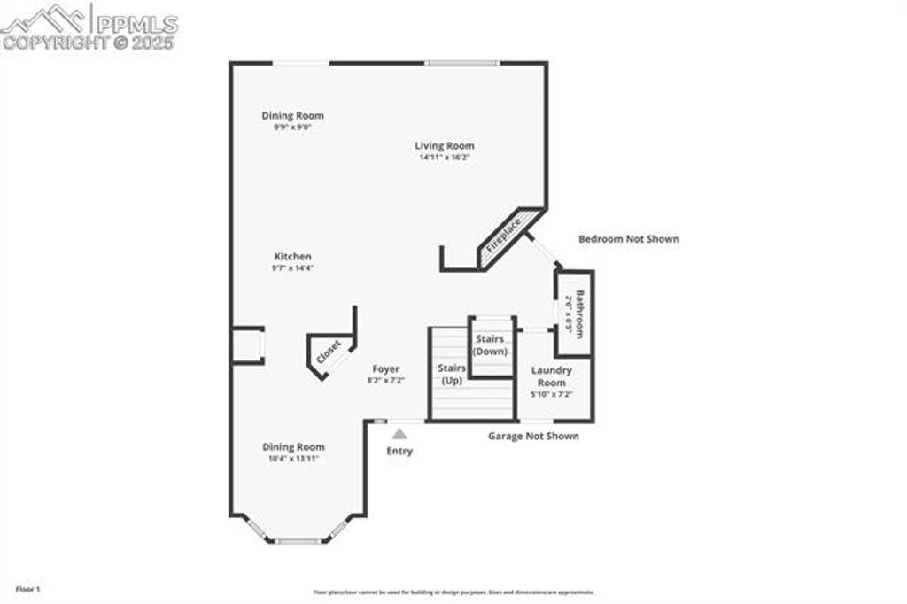
You will be picking your jaw off the perfectly refinished hardwood floors as you walk into this renovated, stunning home! Six bedroom, four bath, three car attached garage with an open floor plan, massive vaulted ceilings and main level primary bedroom suite. Fresh paint, refinished cabinetry, brand new matching hardware fixtures and lighting, newer stainless steel appliances, granite countertops, brand new carpet with upgraded pad and meticulously refinished hardwood floors have this home looking gorgeous! But don't worry, this home doesn't just have the looks, after all, it's what's on the inside that really counts. Rheem furnace and air conditioner professionally installed last year and water heater is only two years old. Fenced backyard with artificial turf, storage shed and brand-new professionally installed, no maintenance Trex deck! Finished basement includes a walk-out entrance, 3/4 bath and two bedrooms, one of which has capped plumbing ready for an easy wet bar or kitchenette sink install. All of this glory in the desirable Ridgeview at Stetson Hills neighborhood with easy access to schools, parks and everything the Powers corridor has to offer. Come take a look and feel what true pride of ownership means!
Property Type(s):
Single Family
| Last Updated | 11/29/2025 | Year Built | 2005 |
|---|---|---|---|
| Community | Ridgeview At Stetson Hills | Garage Spaces | 3.0 |
| County | El Paso |
SCHOOLS
| School District | District 49 |
|---|
Price History
| Prior to Nov 20, '25 | $599,900 |
|---|---|
| Nov 20, '25 - Nov 29, '25 | $589,900 |
| Nov 29, '25 - Today | $585,000 |
Additional Details
| AIR | Ceiling Fan(s), Central Air |
|---|---|
| AIR CONDITIONING | Yes |
| AREA | Ridgeview At Stetson Hills |
| BASEMENT | Walk-Out Access, Yes |
| CONSTRUCTION | Masonite |
| FIREPLACE | Yes |
| GARAGE | Yes |
| HEAT | Forced Air, Natural Gas |
| LOT | 6821 sq ft |
| LOT DESCRIPTION | Sloped |
| PARKING | Garage Door Opener, Attached |
| STORIES | 2 |
| STYLE | 2 Levels |
| TAXES | 1957.07 |
Location
Contact us about this Property
| / | |
| We respect your online privacy and will never spam you. By submitting this form with your telephone number you are consenting for Mike Casey to contact you even if your name is on a Federal or State "Do not call List". | |
Listing provided by: Manchester Properties, LLC, 7193383203
The real estate listing information and related content displayed on this site is provided exclusively for consumers’ personal, non-commercial use and may not be used for any purpose other than to identify prospective properties consumers may be interested in purchasing. This information and related content is deemed reliable but is not guaranteed accurate by the Pikes Peak REALTOR® Services Corp.

This IDX solution is (c) Diverse Solutions 2025.