|
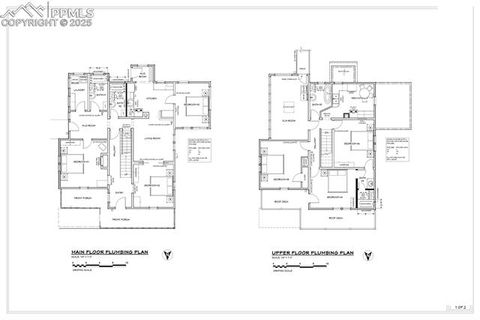
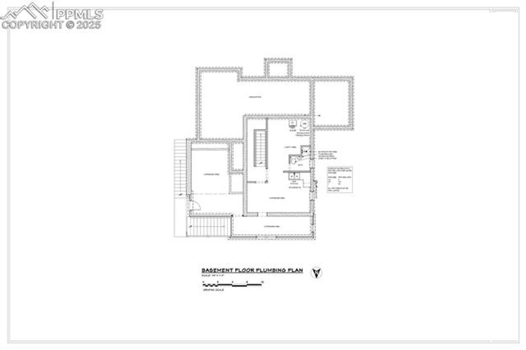
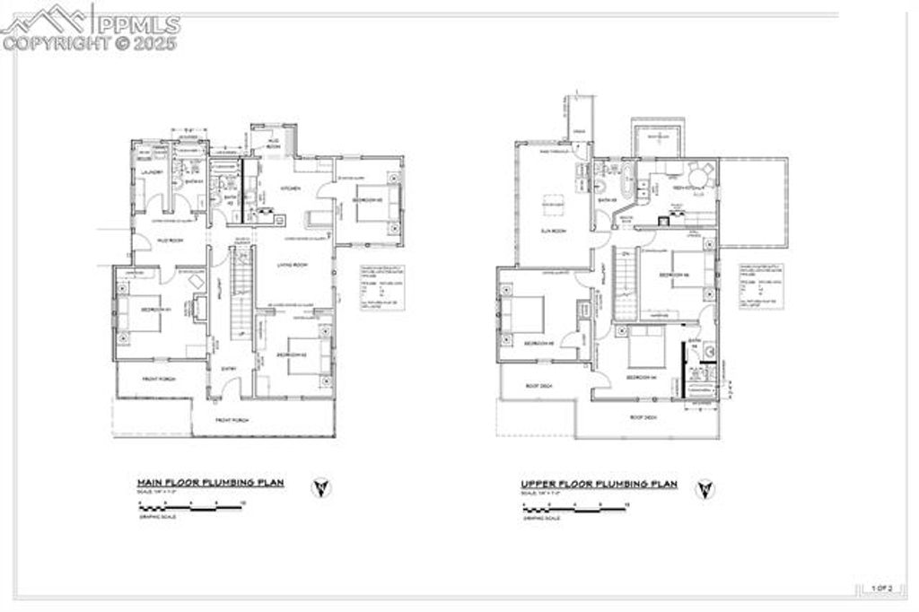
A rare and stately offering in the heart of Manitou Springs, presents a reimagined 1889 Victorian residence known as Brookside "” a historic treasure thoughtfully restored into a turnkey duplex just moments from the Manitou Incline, Garden of the Gods, and the Pikes Peak Cog Railway. Elevated above street level with a striking front porch entry, both units share a grand main entrance that opens into a distinguished foyer. From this space, each flat enjoys private access via separate doors "” one ascending the original 1889 staircase to the upper level, and one remaining on the main level. Each unit offers three bedrooms, two full bathrooms, in-unit laundry, and its own dedicated electrical meter. Timeless Victorian charm is woven throughout the home's restoration, from the preserved period details to refurbished cast-iron tubs. All-new systems "” including plumbing, electrical, windows, kitchens and baths "” create a seamless blend of historic character and modern convenience. The upper-level flat boasts direct access to the expansive backyard, a serene and versatile space ideal for gathering or stargazing. Tucked within the sloped lot are remnants of the home's original well and outdoor kitchen "” subtle nods to the property's past that enrich its narrative. With its iconic location, extensive outdoor space, and rich history, Brookside offers a rare opportunity to own a legacy property in one of Colorado's most beloved mountain communities "” ideal for full-time living or dual rental income. Additionally, a lower-level space with its own entrance adds 914 square feet of versatility. Buyers interested in exploring use of this level as a Family Dwelling Unit (FDU) should consult the City of Manitou Springs for requirements. OM in supplements.
Property Type(s):
Condo/Townhouse/Co-Op
| Last Updated | 10/27/2025 | Year Built | 1889 |
|---|---|---|---|
| Community | Manitou Springs | County | El Paso |
SCHOOLS
| School District | Manitou Springs-14 |
|---|
Additional Details
| AIR | Ceiling Fan(s), None |
|---|---|
| AIR CONDITIONING | Yes |
| AREA | Manitou Springs |
| BASEMENT | Partial, Yes |
| CONSTRUCTION | Wood Siding |
| FIREPLACE | Yes |
| HEAT | Forced Air |
| LOT | 0.257 acre(s) |
| LOT DESCRIPTION | Sloped |
| STORIES | 2 |
| STYLE | 2 Levels |
| TAXES | 2618.26 |
Location
Contact us about this Property
| / | |
| We respect your online privacy and will never spam you. By submitting this form with your telephone number you are consenting for Mike Casey to contact you even if your name is on a Federal or State "Do not call List". | |
Listing provided by: milehimodern, 7202904802
The real estate listing information and related content displayed on this site is provided exclusively for consumers’ personal, non-commercial use and may not be used for any purpose other than to identify prospective properties consumers may be interested in purchasing. This information and related content is deemed reliable but is not guaranteed accurate by the Pikes Peak REALTOR® Services Corp.

This IDX solution is (c) Diverse Solutions 2025.