|
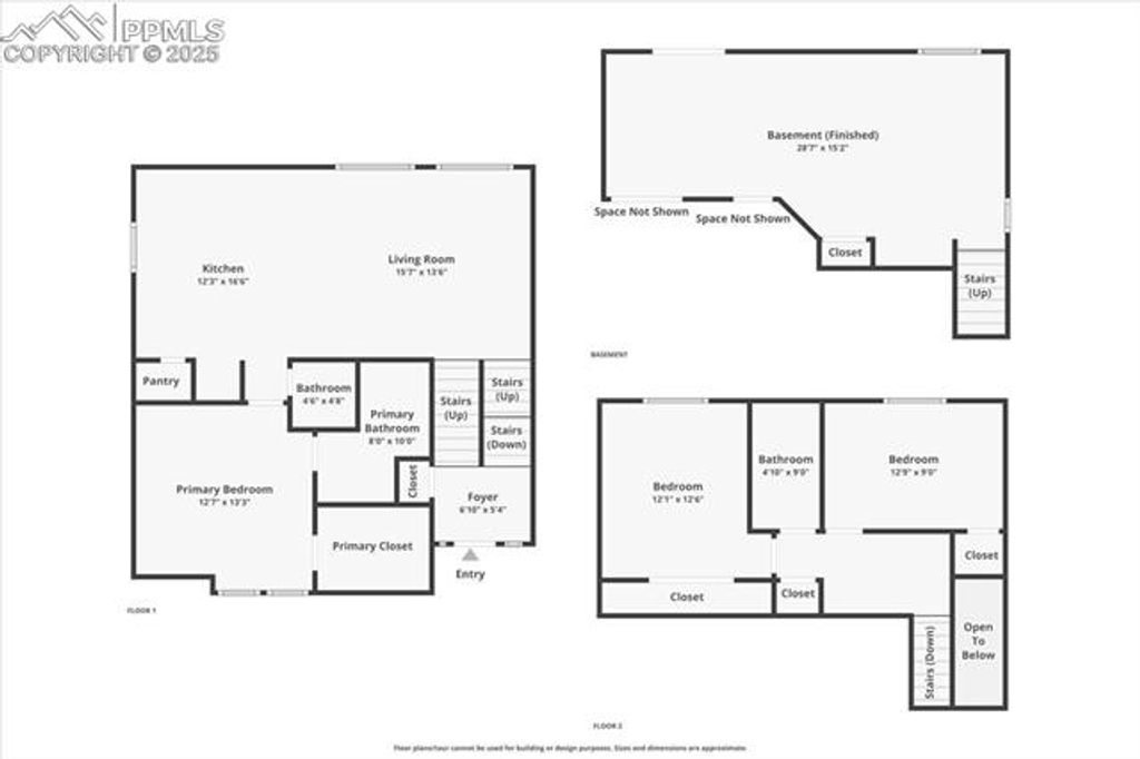
Discover this beautifully maintained, modern home that radiates pride of ownership from the moment you arrive. Featuring three spacious bedrooms and three bathrooms, this residence offers an ideal blend of comfort, style, and functionality. The gourmet kitchen is the heart of the home"”complete with a large granite island that flows seamlessly into the open living room, perfect for entertaining or everyday living. The primary bedroom is conveniently located on the main level and includes a private, attached bathroom. A separate guest bathroom is also located on the main floor for added convenience. Upstairs, you'll find two generously sized bedrooms, a shared full bathroom, and a versatile office area"”great for remote work, homework, or creative space. The lower level features a flexible bonus room currently used as a home gym, offering endless possibilities to suit your lifestyle. Step outside to enjoy a beautiful raised deck and inviting backyard patio, ideal for relaxing, grilling, or hosting gatherings. Located near the award-winning K-12 Banning Lewis Ranch Prep Academy, this community offers exceptional amenities including a clubhouse with a 24-hour fitness center, outdoor Jr. Olympic heated pool, splash park, pickleball courts, over 60 acres of parks and hiking trails, plus trash removal, recycling, snow removal, and more!
Property Type(s):
Single Family
| Last Updated | 11/27/2025 | Year Built | 2021 |
|---|---|---|---|
| Community | Banning Lewis Ranch | Garage Spaces | 2.0 |
| County | El Paso |
SCHOOLS
| School District | District 49 |
|---|
Additional Details
| AIR | Central Air |
|---|---|
| AIR CONDITIONING | Yes |
| AREA | Banning Lewis Ranch |
| CONSTRUCTION | Metal Siding |
| GARAGE | Yes |
| HEAT | Forced Air |
| LOT | 3097 sq ft |
| LOT DESCRIPTION | Level |
| PARKING | Garage Door Opener, Attached |
| STORIES | 3 |
| STYLE | 3 Story |
| TAXES | 3517.28 |
| VIEW | Yes |
| VIEW DESCRIPTION | Mountain(s) |
Location
Contact us about this Property
| / | |
| We respect your online privacy and will never spam you. By submitting this form with your telephone number you are consenting for Mike Casey to contact you even if your name is on a Federal or State "Do not call List". | |
Listing provided by: Keller Williams Premier Realty, 7194450234
The real estate listing information and related content displayed on this site is provided exclusively for consumers’ personal, non-commercial use and may not be used for any purpose other than to identify prospective properties consumers may be interested in purchasing. This information and related content is deemed reliable but is not guaranteed accurate by the Pikes Peak REALTOR® Services Corp.

This IDX solution is (c) Diverse Solutions 2025.