|
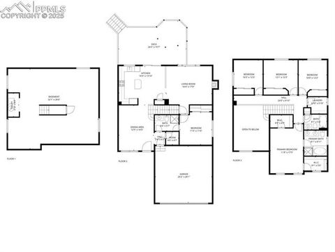
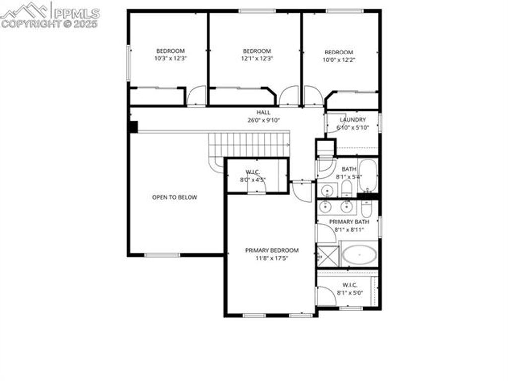
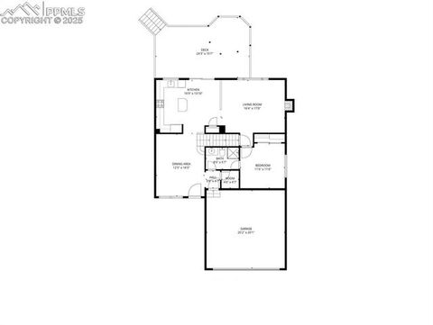
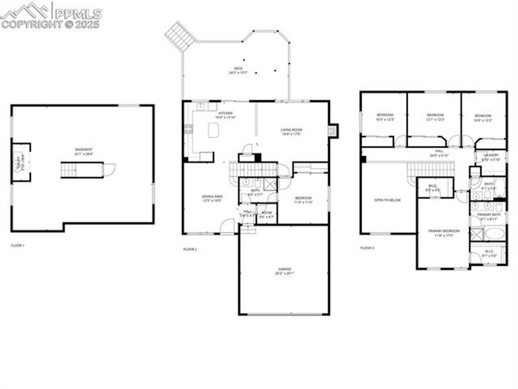
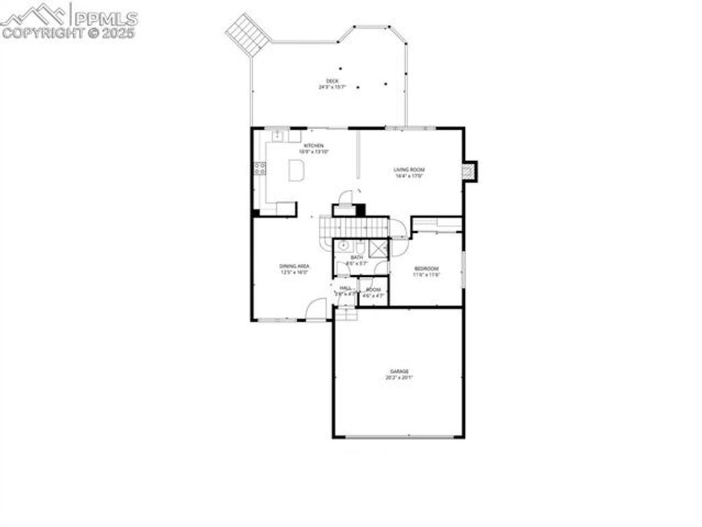
Welcome to this Ridgeview at Stetson Hills two story with Main Level Bedroom. Built in 2003, this pre-inspected 3007sqft home offers 5 bedrooms, 3 bathrooms, and 2-car attached garage plus space for an RV. Fully landscaped with auto sprinklers and fenced back yard, the home has both a covered front porch and large back deck for indoor-outdoor living. Enter to sunny living room with high vaulted ceiling and pretty blonde wood laminate floor. Kitchen features island, pantry, high celling, can lighting, newer stainless steel dishwasher and range oven, and oversized single bowl sink overlooking back yard. Designer kitchen upgrades include dark green cabinets with linear brushed nickel pulls, and a couple of sleek glass-front feature cabinets framing the stove. Dining room walks out to deck for cook-outs. Family room has gas fireplace with decorative tile surround. Main level bedroom has attached ¾ bathroom! Luxurious primary retreat features two walk-in closets and an attached five-piece bathroom with double sink vanity, large soaking tub, and separate shower. Three additional bedrooms upstairs, plus full bathroom and laundry room. Full unfinished basement with plumbing rough-in for lots of storage space now and room to expand in the future. Roof installed 2021, furnace and central A/C installed 2020. Additional highlights include a smart thermostat, honeycomb blinds, drywalled garage, radon mitigation system, and sump pumps. This quiet location is near Skyview Middle School, Ridgeview Elementary, and couple of neighborhood parks! Snowy River Park has playground, basketball court, walking paths, and green space; Jared Jensen Park offers playground, basketball, a climbing rock, a small skate park, and more. Near Powers and Woodmen, Ridgeview at Stetson Hills is convenient to medical centers, restaurants, stores, gyms, and entertainment venues. With a few quick projects to make it your own, this home has the layout, location, and size to become your favorite place to be!
Property Type(s):
Single Family
Last Updated | 10/17/2025 | Year Built | 2003 |
---|---|---|---|
Community | Ridgeview At Stetson Hills | Garage Spaces | 2.0 |
County | El Paso |
SCHOOLS
School District | District 49 |
---|
Additional Details
AIR | Central Air |
---|---|
AIR CONDITIONING | Yes |
AREA | Ridgeview At Stetson Hills |
BASEMENT | Full, Yes |
CONSTRUCTION | Frame, Wood Siding |
FIREPLACE | Yes |
GARAGE | Yes |
HEAT | Forced Air, Natural Gas |
LOT | 6599 sq ft |
LOT DESCRIPTION | Level |
PARKING | Garage Door Opener, Attached |
STORIES | 2 |
STYLE | 2 Levels |
TAXES | 1768.27 |
Location
Contact us about this Property
/ | |
We respect your online privacy and will never spam you. By submitting this form with your telephone number you are consenting for Mike Casey to contact you even if your name is on a Federal or State "Do not call List". |
Listing provided by: Live Dream Colorado LLC, 7195813115
The real estate listing information and related content displayed on this site is provided exclusively for consumers’ personal, non-commercial use and may not be used for any purpose other than to identify prospective properties consumers may be interested in purchasing. This information and related content is deemed reliable but is not guaranteed accurate by the Pikes Peak REALTOR® Services Corp.
This IDX solution is (c) Diverse Solutions 2025.