|
This beautifully updated home is packed with big-ticket improvements, giving buyers peace of mind for years to come. Enjoy a brand NEW roof and NEW AC unit, along with a 2018 furnace and a 2020 water heater. All the essentials are already taken care of! Inside, you'll love the fresh paint throughout, brand-NEW carpet, and stylish NEW countertops that give the home a modern, welcoming feel. With these updates already done, all that's left is to move in and make it your own.
Property Type(s):
Single Family
| Last Updated | 10/28/2025 | Year Built | 1973 |
|---|---|---|---|
| Community | Vista Grande Terrace | Garage Spaces | 1.0 |
| County | El Paso |
SCHOOLS
| School District | Colorado Springs 11 |
|---|
Price History
| Prior to Oct 10, '25 | $434,900 |
|---|---|
| Oct 10, '25 - Oct 28, '25 | $424,900 |
| Oct 28, '25 - Today | $414,900 |
Additional Details
| AIR | Central Air |
|---|---|
| AIR CONDITIONING | Yes |
| AREA | Vista Grande Terrace |
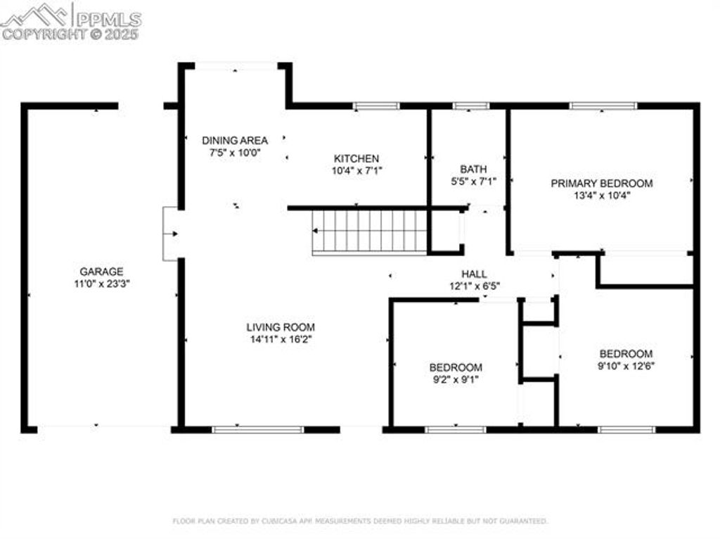
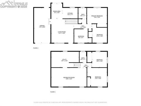
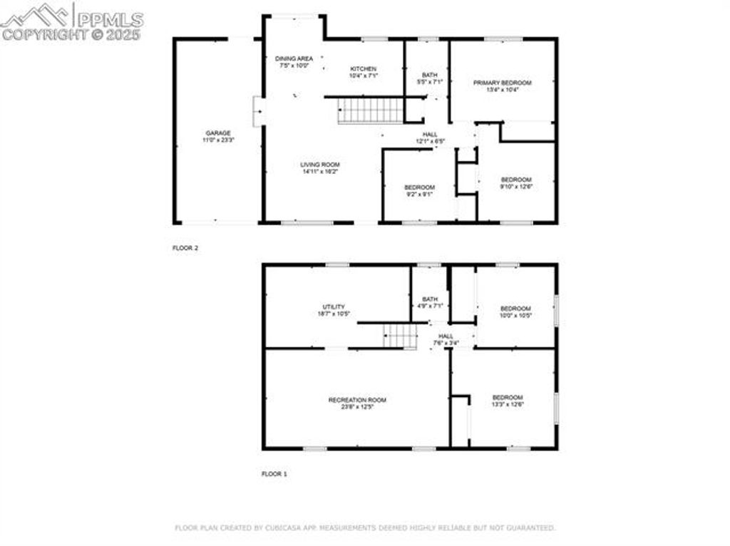
| BASEMENT | Finished, Full, Yes |
| CONSTRUCTION | Frame, Stucco |
| GARAGE | Yes |
| HEAT | Forced Air |
| LOT | 7200 sq ft |
| PARKING | Attached |
| STORIES | 1 |
| STYLE | Ranch |
| TAXES | 1273.96 |
| VIEW | Yes |
| VIEW DESCRIPTION | Mountain(s) |
Location
Contact us about this Property
| / | |
| We respect your online privacy and will never spam you. By submitting this form with your telephone number you are consenting for Mike Casey to contact you even if your name is on a Federal or State "Do not call List". | |
Listing provided by: Renjoy Real Estate, 7196507245
The real estate listing information and related content displayed on this site is provided exclusively for consumers’ personal, non-commercial use and may not be used for any purpose other than to identify prospective properties consumers may be interested in purchasing. This information and related content is deemed reliable but is not guaranteed accurate by the Pikes Peak REALTOR® Services Corp.

This IDX solution is (c) Diverse Solutions 2025.