|
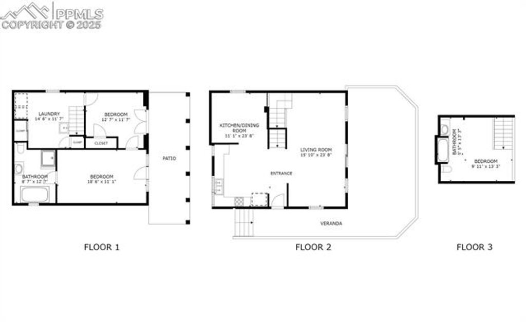
This charming mountain property offers stunning Pikes Peak views and comfortable living with 1705 sq ft. Situated on a 2+ acres with a mix of pine and aspen. Need more space, the adjacent 2-acre parcel is available. The home features an open 12x24 living with breathtaking Pikes Peak views, vaulted wood ceilings, a cozy wood-burning stove and log post and railings. The adjacent kitchen has granite countertops and stainless steel appliances, The dining is perfect for a relaxing meal. On the lower level is the primary bedroom, also with Pikes Peak Views and a Rinnai heater for added comfort. The en-suite bath has heated porcelain floors, a jetted whirlpool tub with a unique dolphin water spout, a freestanding shower, and a single vanity with a granite countertop. A third bedroom is also located on the lower level with ample closet space and a separate access to the primary bath. The lower-level laundry room features ceramic flooring and includes a washer and dryer. Upstairs, a loft-style bedroom and bath offers vaulted wood ceilings, a mix of carpet and premium vinyl flooring, a single vanity, and a tub/shower combo. Outdoor, the property includes a 2-car detached garage and a separate 1-car detached garage that could double as a workshop. Multiple seating areas are scattered about, perfect for enjoying the serene surroundings and the impressive Pikes Peak vistas. A fire pit provides a wonderful gathering spot. You can also expect to see some friendly "4-legged neighbors" adding to the peaceful atmosphere. Recent updates include new roofs (2018), exterior paint (2021), bathroom remodel (2022), a deck update (2022), new LED lighting (2022), recessed lighting (2023), deck refinishing (2024), and mitigation (2024). Only 5 minutes to Evergreen Station and within a short drive to Cripple Creek or Florissant, Divide and Woodland Park. Plus close proximity to hiking, biking, fishing, OHV, and rockhounding areas. The adjacent 2+ acres is also available. MLS: 8729409
Property Type(s):
Single Family
| Last Updated | 10/2/2025 | Year Built | 1980 |
|---|---|---|---|
| Community | Ranch Resorts | Garage Spaces | 3.0 |
| County | Teller |
SCHOOLS
| School District | Cripple Crk/Victor-RE1 |
|---|
Price History
| Prior to May 19, '25 | $575,000 |
|---|---|
| May 19, '25 - Jun 18, '25 | $550,000 |
| Jun 18, '25 - Jul 25, '25 | $525,000 |
| Jul 25, '25 - Oct 2, '25 | $499,900 |
| Oct 2, '25 - Today | $487,500 |
Additional Details
| AIR | Ceiling Fan(s) |
|---|---|
| AIR CONDITIONING | Yes |
| AREA | Ranch Resorts |
| BASEMENT | Finished, Full, Yes |
| CONSTRUCTION | Frame, Log |
| FIREPLACE | Yes |
| GARAGE | Yes |
| HEAT | Electric, Forced Air, Propane, Wall Furnace, Wood |
| LOT | 2.11 acre(s) |
| LOT DESCRIPTION | Sloped, Wooded |
| PARKING | Garage Door Opener, Detached |
| STORIES | 1 |
| STYLE | 1.5 Story |
| TAXES | 1079 |
| VIEW | Yes |
| VIEW DESCRIPTION | Mountain(s) |
Location
Contact us about this Property
| / | |
| We respect your online privacy and will never spam you. By submitting this form with your telephone number you are consenting for Mike Casey to contact you even if your name is on a Federal or State "Do not call List". | |
Listing provided by: Pikes Peak Homes and Land Ltd, 7194645839
The real estate listing information and related content displayed on this site is provided exclusively for consumers’ personal, non-commercial use and may not be used for any purpose other than to identify prospective properties consumers may be interested in purchasing. This information and related content is deemed reliable but is not guaranteed accurate by the Pikes Peak REALTOR® Services Corp.

This IDX solution is (c) Diverse Solutions 2025.