|
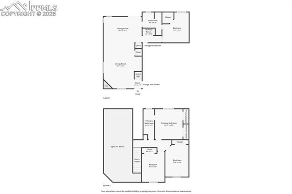
Recent Updates: -New Class 4 Shingle Roof Installed October 2025 Discover the perfect haven in this inviting 4-bedroom, 2-bathroom home-ideal for first-time buyers or those seeking an affordable upgrade in a welcoming neighborhood. Imagine starting your day in a sunlit kitchen flowing into an open living area, where morning coffee turns into relaxed breakfasts with fresh aromas, and evening gatherings around the island bar offer space for sharing stories or hosting neighbors. The thoughtful layout maximizes space, with upstairs bedrooms providing peaceful retreats"”picture unwinding with hobbies in cozy corners or relaxing in the primary suite with its en-suite bath. Downstairs, the versatile family room sparks creativity: a home office for work, a hobby space for projects, or a fitness area for wellness, all within comfort. Step outside to a private backyard deck, perfect for weekend barbecues where flavors mingle and guests linger, or quiet stargazing evenings. The fenced yard supports safe outdoor play, games, or a small garden to connect with nature. The attached garage offers storage for bikes, tools, and gear for lake trips, keeping life organized. Modern updates like stainless appliances and stylish lighting ensure effortless living, from quick meals to cozy evenings. Envision holiday dinners in the vaulted-ceiling great room filled with warmth, lively gatherings turning it into a joy hub, or relaxing baths easing weekly stress. This home is a canvas for your next chapter, blending comfort and value in a serene suburban setting with community events, parks for outings, and easy access to schools and shops. Whether dreaming of first-home milestones or more space without budget strain, this property delivers. Schedule a viewing today and step into your future!
Property Type(s):
Single Family
Last Updated | 10/13/2025 | Year Built | 2001 |
---|---|---|---|
Community | Columbine Valley | Garage Spaces | 2.0 |
County | Teller |
SCHOOLS
School District | Woodland Park RE2 |
---|
Price History
Prior to Sep 22, '25 | $445,000 |
---|---|
Sep 22, '25 - Oct 13, '25 | $425,000 |
Oct 13, '25 - Today | $400,000 |
Additional Details
AIR | Ceiling Fan(s) |
---|---|
AIR CONDITIONING | Yes |
AREA | Columbine Valley |
CONSTRUCTION | Frame, Stucco |
FIREPLACE | Yes |
GARAGE | Yes |
HEAT | Forced Air, Natural Gas |
LOT | 5227 sq ft |
LOT DESCRIPTION | Cul-de-sac, Wooded |
PARKING | Garage Door Opener, Attached |
STORIES | 2 |
STYLE | 2 Levels |
TAXES | 1830.92 |
VIEW | Yes |
VIEW DESCRIPTION | Mountain(s) |
Location
Contact us about this Property
/ | |
We respect your online privacy and will never spam you. By submitting this form with your telephone number you are consenting for Mike Casey to contact you even if your name is on a Federal or State "Do not call List". |
Listing provided by: Call It Closed International Realty, 4073383339
The real estate listing information and related content displayed on this site is provided exclusively for consumers’ personal, non-commercial use and may not be used for any purpose other than to identify prospective properties consumers may be interested in purchasing. This information and related content is deemed reliable but is not guaranteed accurate by the Pikes Peak REALTOR® Services Corp.
This IDX solution is (c) Diverse Solutions 2025.