|
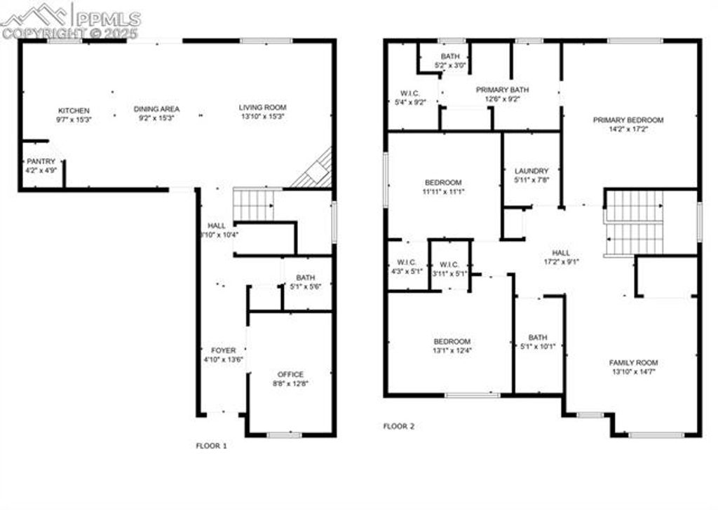
Stylish 2-Story Backing to Open Space in Mule Deer Crossing! This beautifully remodeled 3 bedroom, 2.5 bath home with a 2-car garage in District 49 offers modern touches throughout. The main level features luxury vinyl flooring, a private office, and a welcoming living room with a cozy fireplace. The updated kitchen shines with solid-surface counters, stainless steel appliances, custom pantry, island, and spacious dining area with walkout access to the fenced backyard with new grass"”perfect for summer gatherings. Upstairs, enjoy an oversized family room, convenient laundry room, and a luxurious primary suite with a 5-piece bath, water closet, and custom built-in closet. Two additional bedrooms and a full bath complete the upper level. Backing to open space and close to Peterson Air Force Base, parks, trails, schools, shopping, and more"”this home truly has it all! Ideally located near Peterson Air Force Base, parks, trails, schools, medical facilities, shopping, restaurants, and more!
Property Type(s):
Single Family
Last Updated | 10/14/2025 | Year Built | 2013 |
---|---|---|---|
Community | Mule Deer Crossing | Garage Spaces | 2.0 |
County | El Paso |
SCHOOLS
School District | District 49 |
---|
Price History
Prior to Oct 14, '25 | $489,000 |
---|---|
Oct 14, '25 - Today | $484,900 |
Additional Details
AIR | Ceiling Fan(s), Central Air |
---|---|
AIR CONDITIONING | Yes |
AREA | Mule Deer Crossing |
CONSTRUCTION | Frame, Masonite |
FIREPLACE | Yes |
GARAGE | Yes |
HEAT | Forced Air, Natural Gas |
LOT | 5789 sq ft |
LOT DESCRIPTION | Level |
PARKING | Attached |
STORIES | 2 |
STYLE | 2 Levels |
TAXES | 2011.73 |
VIEW | Yes |
VIEW DESCRIPTION | Mountain(s) |
Location
Contact us about this Property
/ | |
We respect your online privacy and will never spam you. By submitting this form with your telephone number you are consenting for Mike Casey to contact you even if your name is on a Federal or State "Do not call List". |
Listing provided by: Exp Realty LLC, 8884402724
The real estate listing information and related content displayed on this site is provided exclusively for consumers’ personal, non-commercial use and may not be used for any purpose other than to identify prospective properties consumers may be interested in purchasing. This information and related content is deemed reliable but is not guaranteed accurate by the Pikes Peak REALTOR® Services Corp.
This IDX solution is (c) Diverse Solutions 2025.