|
Property Type(s):
Single Family
| Last Updated | 3/12/2026 | Year Built | 1928 |
|---|---|---|---|
| Community | Ute Pass | County | El Paso |
SCHOOLS
| School District | Manitou Springs-14 |
|---|
Additional Details
| AREA | Ute Pass |
|---|---|
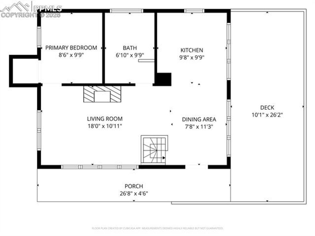
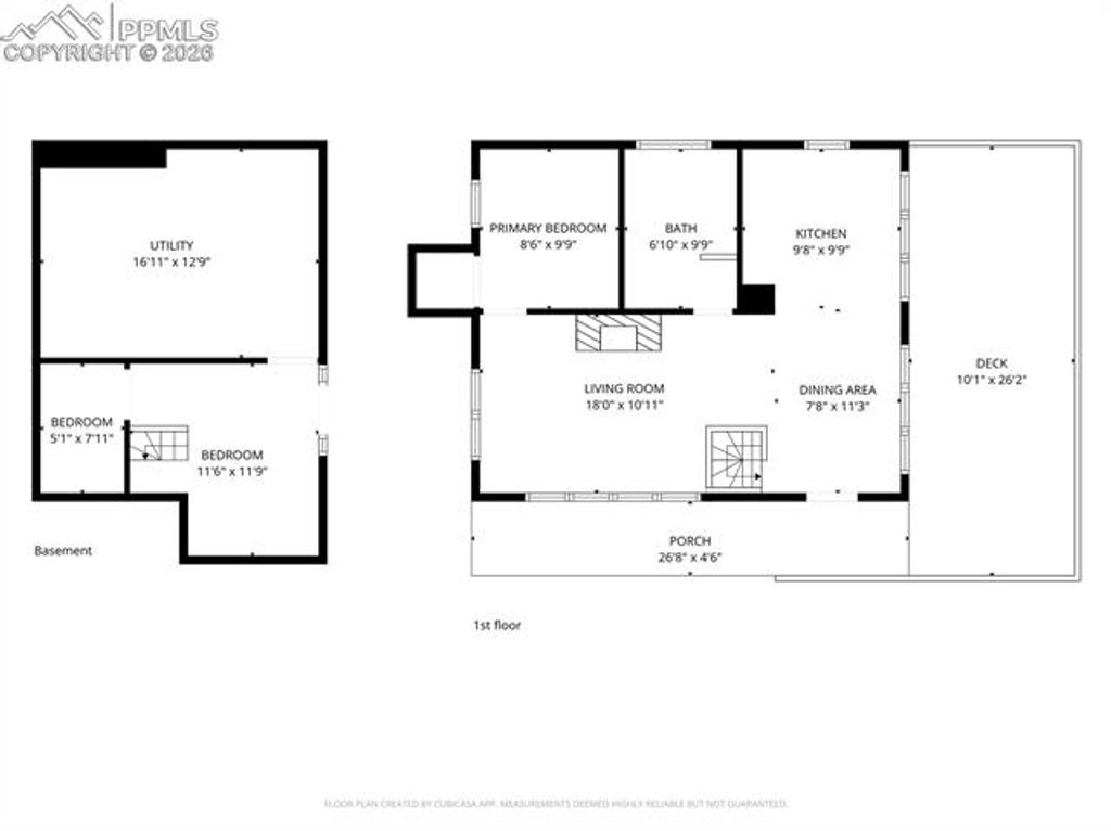
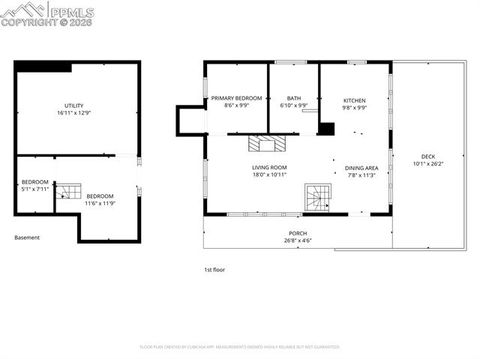
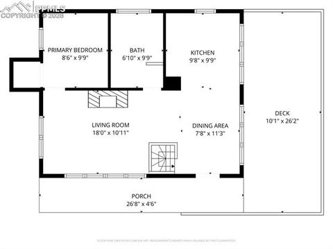
| BASEMENT | Full, Walk-Out Access, Yes |
| CONSTRUCTION | Log, Stone, Wood Siding |
| LOT | 4792 sq ft |
| STORIES | 1 |
| STYLE | Ranch |
| TAXES | 1760 |
Location
Contact us about this Property
| / | |
| We respect your online privacy and will never spam you. By submitting this form with your telephone number you are consenting for Mike Casey to contact you even if your name is on a Federal or State "Do not call List". | |
Listing provided by: Coldwell Banker 1st Choice Realty, 7196870900

The real estate listing information and related content displayed on this site is provided exclusively for consumers’ personal, non-commercial use and may not be used for any purpose other than to identify prospective properties consumers may be interested in purchasing. This information and related content is deemed reliable but is not guaranteed accurate by the Pikes Peak REALTOR® Services Corp d/b/a elevateMLS.
This IDX solution is (c) Diverse Solutions 2026.