|
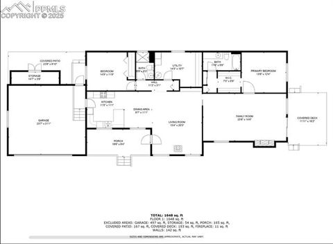
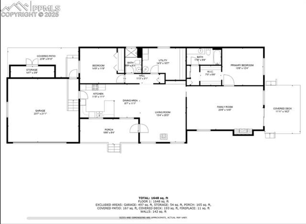
This charming 2-bedroom, 2-bathroom home offers 1,720 square feet of inviting living space, perfectly situated on a spacious and level .53 acre lot. With a mix of mature aspen and pine trees, this property also features open mountain grass areas and stunning views of Pikes Peak. Located in a peaceful, well-established neighborhood, this home provides the ideal balance of tranquility and convenience. It's just minutes away from local schools, shopping, restaurants, and all the essential amenities that make everyday living easy and enjoyable. Step inside to discover a home that offers both comfort and functionality. The main floor features an open-concept layout with vaulted ceilings that enhance the sense of space, and built-in bookshelves that add character and practicality. The living room is anchored by a wood-burning stove "” perfect for chilly Colorado evenings "” while the adjoining family room includes a gas fireplace and a walk-out to a private and covered deck. The home also includes a generous attached storage area (15' x 4'), ideal for storing tools, outdoor gear, or seasonal décor. The spacious garage is equipped with a workbench, providing the perfect space for hobbies or DIY projects. Recent upgrades include a new furnace installed in 2023, ensuring comfort and energy efficiency for years to come. With solid bones, this home is ready for your personal touch "” whether you envision cozy updates or a full design transformation, the potential here is limitless.
Property Type(s):
Single Family
Last Updated | 9/19/2025 | Year Built | 1986 |
---|---|---|---|
Community | Park View Estates | Garage Spaces | 2.0 |
County | Teller |
SCHOOLS
School District | Woodland Park RE2 |
---|
Price History
Prior to Jul 15, '25 | $495,000 |
---|---|
Jul 15, '25 - Jul 31, '25 | $472,900 |
Jul 31, '25 - Sep 19, '25 | $462,500 |
Sep 19, '25 - Today | $449,950 |
Additional Details
AIR | None |
---|---|
AREA | Park View Estates |
BASEMENT | Crawl Space |
CONSTRUCTION | Frame, Wood Siding |
FIREPLACE | Yes |
GARAGE | Yes |
HEAT | Forced Air, Natural Gas |
LOT | 0.53 acre(s) |
LOT DESCRIPTION | Level |
PARKING | Attached |
STORIES | 1 |
STYLE | Ranch |
TAXES | 2100.96 |
VIEW | Yes |
VIEW DESCRIPTION | Mountain(s) |
Location
Contact us about this Property
/ | |
We respect your online privacy and will never spam you. By submitting this form with your telephone number you are consenting for Mike Casey to contact you even if your name is on a Federal or State "Do not call List". |
Listing provided by: Great Western Ranch & Land LLC, 7196597598
The real estate listing information and related content displayed on this site is provided exclusively for consumers’ personal, non-commercial use and may not be used for any purpose other than to identify prospective properties consumers may be interested in purchasing. This information and related content is deemed reliable but is not guaranteed accurate by the Pikes Peak REALTOR® Services Corp.
This IDX solution is (c) Diverse Solutions 2025.