|
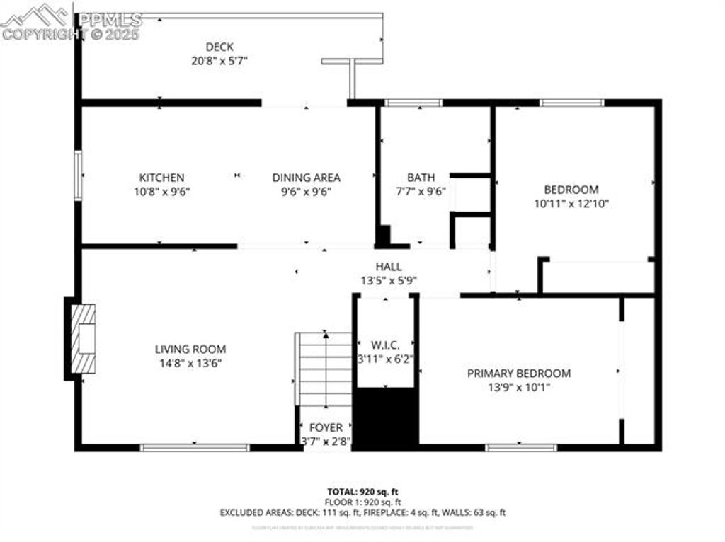
Welcome to this meticulously maintained duplex located on the sought-after West Side of Colorado Springs, an unbeatable location close to hiking and biking trails, Garden of the Gods, Old Colorado City, and downtown. This versatile property delivers both comfort and potential income. Conveniently located, the property has quick access to trails, parks, shops, and schools. Use both units as income-producing rentals or move into one unit and rent the other out as a long-term rental or an Airbnb. The property is zoned R-5, and is ready for the savvy investor to develop the lot by adding units. The property has been lovingly maintained inside and out and is turnkey, ready for immediate ocupancy. Property highlights include all new windows in Unit 1 (2024), freshly painted exterior, and a gated, private yard. Low-maintenance landscaping means easy upkeep, low water bills, and better cash flow. Buyers will love the 10' x 14' Tuff Shed, oversized 2-car garage with room for storage or workshop space, and new window coverings in both units. Unit 1 features newer stainless steel appliances, drinking water filtration system in kitchen, wood-burning fireplace, fiber internet and data wiring for high-speed connectivity. Unit 2 boasts complete updates throughout, a gas fireplace, and keyless entry. Each unit offers comfortable living spaces, private entries, and thoughtful updates, making this an ideal property for investors, house hackers, or owner-occupants. Don't miss your chance to own a duplex on the vibrant West Side"”a rare find with true income potential in an area with a strong history of appreciation and rental income. Schedule your showing today! Please note, Unit 2 previously operated by the owner as an Airbnb, with potential earnings of $2,700+/month shown in rental income of listing. Unit 1 has rent ESTIMATED in the listing at $1,550 on the open rental market but is currently occupied by Seller, at zero rent.
Property Type(s):
Multi Family
Last Updated | 10/10/2025 | Year Built | 1968 |
---|---|---|---|
Community | Holland Park | County | El Paso |
SCHOOLS
School District | Colorado Springs 11 |
---|
Additional Details
AIR | Central Air |
---|---|
AIR CONDITIONING | Yes |
AREA | Holland Park |
CONSTRUCTION | Stucco |
FIREPLACE | Yes |
HEAT | Forced Air, Natural Gas |
LOT | 10032 sq ft |
TAXES | 1418.45 |
Location
Contact us about this Property
/ | |
We respect your online privacy and will never spam you. By submitting this form with your telephone number you are consenting for Mike Casey to contact you even if your name is on a Federal or State "Do not call List". |
Listing provided by: Reid Realty, Inc, 7195104632
The real estate listing information and related content displayed on this site is provided exclusively for consumers’ personal, non-commercial use and may not be used for any purpose other than to identify prospective properties consumers may be interested in purchasing. This information and related content is deemed reliable but is not guaranteed accurate by the Pikes Peak REALTOR® Services Corp.
This IDX solution is (c) Diverse Solutions 2025.