|
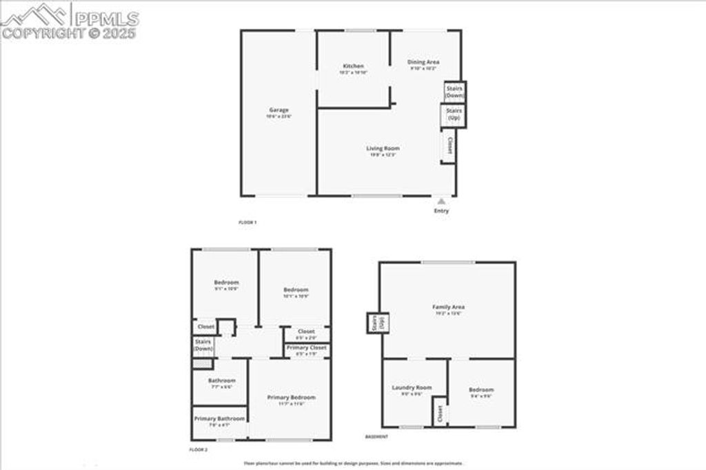
Fantastic opportunity to own a home with tons of potential! This one-owner property in the highly sought-after Garden Ranch area offers unbeatable convenience"”just minutes from schools, shopping, and neighborhood trails. Featuring four bedrooms, two bathrooms, and a one-car attached garage, this home has had all the major systems diligently maintained, including updated windows, roof replaced in 2013, furnace in 2013, and a water heater installed in 2021. The home is structurally sound and has great curb appeal. Sitting on almost a quarter-acre lot, the spacious yard provides ample room for outdoor living, gardening, or future enhancements. With a bit of cosmetic updating, this well loved home has the potential to shine beautifully. A solid home in a fantastic location"”don't miss this chance to make it your own!
Property Type(s):
Single Family
| Last Updated | 12/5/2025 | Year Built | 1970 |
|---|---|---|---|
| Community | Garden Ranch | Garage Spaces | 1.0 |
| County | El Paso |
SCHOOLS
| School District | Colorado Springs 11 |
|---|
Additional Details
| AIR | Ceiling Fan(s) |
|---|---|
| AIR CONDITIONING | Yes |
| AREA | Garden Ranch |
| BASEMENT | Crawl Space |
| CONSTRUCTION | Wood Siding |
| GARAGE | Yes |
| HEAT | Forced Air |
| LOT | 9801 sq ft |
| LOT DESCRIPTION | Level |
| PARKING | Attached |
| STORIES | 3+ |
| STYLE | Tri-Level |
| TAXES | 1259.56 |
| VIEW | Yes |
| VIEW DESCRIPTION | Mountain(s) |
Location
Contact us about this Property
| / | |
| We respect your online privacy and will never spam you. By submitting this form with your telephone number you are consenting for Mike Casey to contact you even if your name is on a Federal or State "Do not call List". | |
Listing provided by: Keller Williams Premier Realty, 7194450234
The real estate listing information and related content displayed on this site is provided exclusively for consumers’ personal, non-commercial use and may not be used for any purpose other than to identify prospective properties consumers may be interested in purchasing. This information and related content is deemed reliable but is not guaranteed accurate by the Pikes Peak REALTOR® Services Corp.

This IDX solution is (c) Diverse Solutions 2025.