According to the listing agent, this listing is a bank owned (foreclosed) property. |
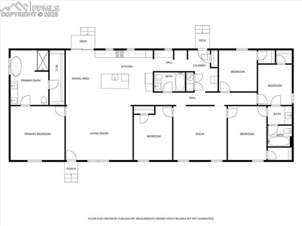
New home to be built for your family in just 4 months. This house is big and gorgeous! a 40 acres sanctuary, 15 minutes drive to grocery shopping, restaurants, gas and more, 35 minutes to Colorado Springs, 25 minutes to Falcon Walmart, Kingsoopers, restaurants and shopping. With 2,305 square feet this ample and comfotable home offers 5 bedrooms and 3 full bathrooms, extra-large walking closet in master's bedroom, mud room, energy-efficient furnace with smart thermostat for lower utilies bills. No covenants, no restrictions. Horses and other animals are allowed. Over sized dettached 4 car garage/barn/storage with electrical power and a carport. Inspiring views of the local mountain ranges. Ideal for horses, and for people in need of space for equipment, cars, hobbies, etcetera. Built with pride, 7 year structural warranty, and 1 year warranty on interior finishes and appliances. An absolutely beautiful and peaceful private retreat from the city noise and conflicts. This one will go fast!
Property Type(s):
Single Family
| Last Updated | 12/11/2025 | Year Built | 2026 |
|---|---|---|---|
| Community | None | Garage Spaces | 4.0 |
| County | Lincoln |
SCHOOLS
| School District | Miami/Yoder 60JT |
|---|
Additional Details
| AIR | Central Air |
|---|---|
| AIR CONDITIONING | Yes |
| AREA | None |
| BASEMENT | Crawl Space |
| CONSTRUCTION | Wood Siding |
| FIREPLACE | Yes |
| GARAGE | Yes |
| HEAT | Propane |
| LOT | 40 acre(s) |
| PARKING | Detached |
| STORIES | 1 |
| STYLE | Ranch |
| TAXES | 1033 |
| VIEW | Yes |
| VIEW DESCRIPTION | Mountain(s) |
Location
Contact us about this Property
| / | |
| We respect your online privacy and will never spam you. By submitting this form with your telephone number you are consenting for Mike Casey to contact you even if your name is on a Federal or State "Do not call List". | |
Listing provided by: Boutique Homes, LLC, 7204006688
The real estate listing information and related content displayed on this site is provided exclusively for consumers’ personal, non-commercial use and may not be used for any purpose other than to identify prospective properties consumers may be interested in purchasing. This information and related content is deemed reliable but is not guaranteed accurate by the Pikes Peak REALTOR® Services Corp.

This IDX solution is (c) Diverse Solutions 2025.