|
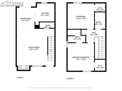
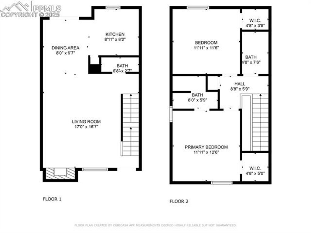
Welcome to this fully renovated 2-bed/3-bath condominium unit in the Broadmoor Village subdivision, in Cheyenne Mountain D-12 School District. The entire unit was remodeled in 2025 with new laminate flooring, updated bathrooms, and a chef's kitchen featuring granite countertops and new stainless-steel appliances. A wood-burning fireplace anchors the open-concept living/dining area for cozy evenings. The roof was replaced recently and stucco was refreshed in 2022. Upstairs, the spacious primary suite includes a private en-suite bath with a walk-in shower, while the second bedroom is perfect for guests, children or a home office. The unit includes a 2-car attached garage with in-garage laundry and low-maintenance living via HOA (trash, snow removal, water, grounds included). Located minutes from I-25, downtown Colorado Springs, the Broadmoor resort area, dining, grocery store and shopping. Includes 3D tour. Turn-key and ready. Easy living in a rare low-turnover community on the West side of Colorado Springs. Schedule your showing today.
Property Type(s):
Condo/Townhouse/Co-Op
| Last Updated | 9/8/2025 | Year Built | 1980 |
|---|---|---|---|
| Community | Broadmoor Village | Garage Spaces | 2.0 |
| County | El Paso |
SCHOOLS
| School District | Cheyenne Mtn-12 |
|---|
Price History
| Prior to Sep 8, '25 | $310,000 |
|---|---|
| Sep 8, '25 - Today | $300,000 |
Additional Details
| AIR | None |
|---|---|
| AREA | Broadmoor Village |
| CONSTRUCTION | Stucco |
| FIREPLACE | Yes |
| GARAGE | Yes |
| HEAT | Forced Air |
| PARKING | Attached |
| STORIES | 2 |
| STYLE | 2 Levels |
| TAXES | 1027.75 |
Location
Contact us about this Property
| / | |
| We respect your online privacy and will never spam you. By submitting this form with your telephone number you are consenting for Mike Casey to contact you even if your name is on a Federal or State "Do not call List". | |
Listing provided by: CO RE Group, LLC, 7193210800
The real estate listing information and related content displayed on this site is provided exclusively for consumers’ personal, non-commercial use and may not be used for any purpose other than to identify prospective properties consumers may be interested in purchasing. This information and related content is deemed reliable but is not guaranteed accurate by the Pikes Peak REALTOR® Services Corp.

This IDX solution is (c) Diverse Solutions 2025.