|
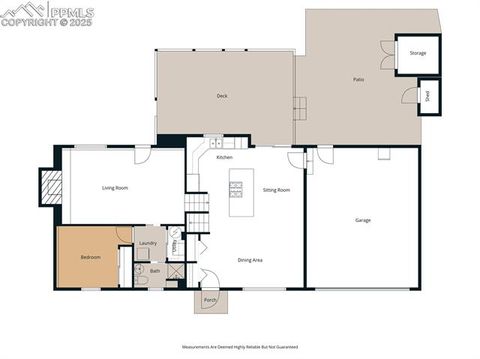
Welcome to 3371 Teardrop Circle, nestled in one of Colorado Springs' most established neighborhoods. The flexible layout offers room for everyone, whether you need a cozy home office, a playroom for the kids, or a welcoming guest retreat. The home includes four spacious bedrooms and three bathrooms, featuring a private primary suite with its own bath. Windows fill the home with natural light, creating a bright and cheerful atmosphere throughout. At the heart of the home, the kitchen has been thoughtfully updated with stainless steel appliances, soft-close cabinetry, and a gas cooktop, making it as practical as it is stylish. These upgrades, paired with a beautiful wood burning fireplace and the convenience of a central vacuum system make the perfect home for everyday living and entertaining. Outdoors, the generous backyard with mature trees and covered deck is perfect for summer barbecues or to relax and enjoy Colorado's four beautiful seasons. The established neighborhood offers quiet streets, a sense of community, and the kind of stability that makes this area so desirable. Conveniently located near local parks, schools, shopping, and dining, this home strikes the perfect balance between suburban tranquility and city convenience. 3371 Teardrop Circle is more than just a house, it's a welcoming haven designed for gathering, growing, and creating lasting memories.
Property Type(s):
Single Family
Last Updated | 10/19/2025 | Year Built | 1973 |
---|---|---|---|
Community | Village Heights | Garage Spaces | 2.0 |
County | El Paso |
SCHOOLS
School District | Colorado Springs 11 |
---|
Price History
Prior to Oct 19, '25 | $410,000 |
---|---|
Oct 19, '25 - Today | $400,000 |
Additional Details
AIR | Ceiling Fan(s) |
---|---|
AIR CONDITIONING | Yes |
AREA | Village Heights |
CONSTRUCTION | Wood Siding |
FIREPLACE | Yes |
GARAGE | Yes |
HEAT | Forced Air |
LOT | 9200 sq ft |
PARKING | Attached |
STORIES | 3+ |
STYLE | Tri-Level |
TAXES | 1266.76 |
Location
Contact us about this Property
/ | |
We respect your online privacy and will never spam you. By submitting this form with your telephone number you are consenting for Mike Casey to contact you even if your name is on a Federal or State "Do not call List". |
Listing provided by: Coldwell Banker Realty, 3034091300
The real estate listing information and related content displayed on this site is provided exclusively for consumers’ personal, non-commercial use and may not be used for any purpose other than to identify prospective properties consumers may be interested in purchasing. This information and related content is deemed reliable but is not guaranteed accurate by the Pikes Peak REALTOR® Services Corp.
This IDX solution is (c) Diverse Solutions 2025.