According to the listing agent, this listing is a bank owned (foreclosed) property. |
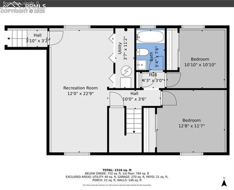
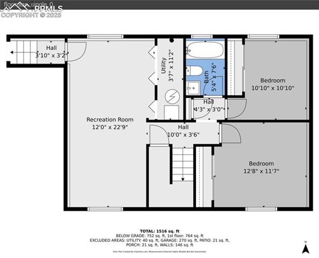
Newly renovated bi-level home in Stratmoor Hills offering modern finishes, a bright open layout, and a spacious fenced backyard. The upper level features an updated kitchen with white shaker cabinets, quartz counters, subway tile backsplash, stainless steel appliances, and an extended dining area with a large picture window. The living room has great natural light and updated flooring throughout. Both bathrooms have been beautifully remodeled with new tile, fixtures, lighting, and vanities. The lower level includes a large second living area plus two additional bedrooms and a full bath. Fresh paint, new flooring, updated lighting, new appliances, new roof, new fixtures and new hardware throughout. 1-car garage with additional storage space. Conveniently located near Fort Carson, shopping, parks, and schools with easy access to I-25. Move-in ready with clean, modern finishes throughout.
Property Type(s):
Single Family
| Last Updated | 11/20/2025 | Year Built | 1974 |
|---|---|---|---|
| Community | Stratmoor South | Garage Spaces | 1.0 |
| County | El Paso |
SCHOOLS
| School District | Harrison-2 |
|---|
Additional Details
| AIR | Ceiling Fan(s) |
|---|---|
| AIR CONDITIONING | Yes |
| AREA | Stratmoor South |
| CONSTRUCTION | Brick, Frame, Metal Siding |
| GARAGE | Yes |
| HEAT | Forced Air |
| LOT | 6826 sq ft |
| LOT DESCRIPTION | Level |
| PARKING | Attached |
| STORIES | 2 |
| STYLE | Bi-level |
| TAXES | 1586.37 |
| VIEW | Yes |
| VIEW DESCRIPTION | Mountain(s) |
Location
Contact us about this Property
| / | |
| We respect your online privacy and will never spam you. By submitting this form with your telephone number you are consenting for Mike Casey to contact you even if your name is on a Federal or State "Do not call List". | |
Listing provided by: Coldwell Banker Realty, 7195502500
The real estate listing information and related content displayed on this site is provided exclusively for consumers’ personal, non-commercial use and may not be used for any purpose other than to identify prospective properties consumers may be interested in purchasing. This information and related content is deemed reliable but is not guaranteed accurate by the Pikes Peak REALTOR® Services Corp.

This IDX solution is (c) Diverse Solutions 2025.