According to the listing agent, this listing is a bank owned (foreclosed) property. |
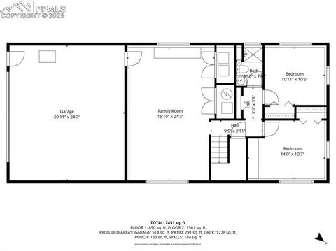
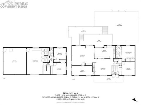
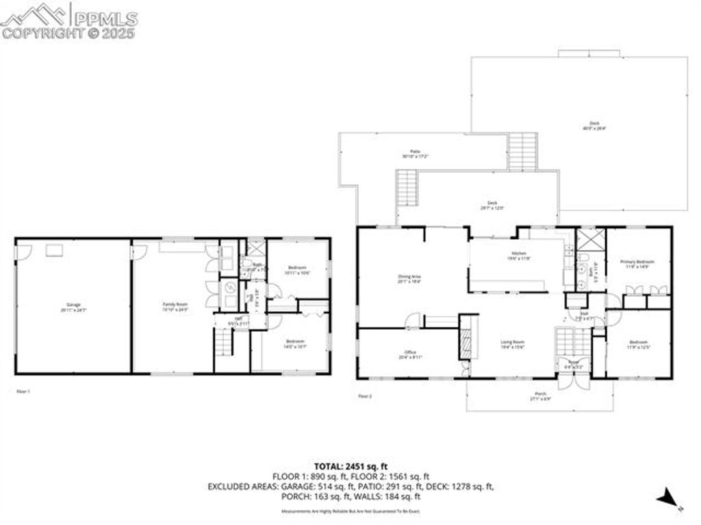
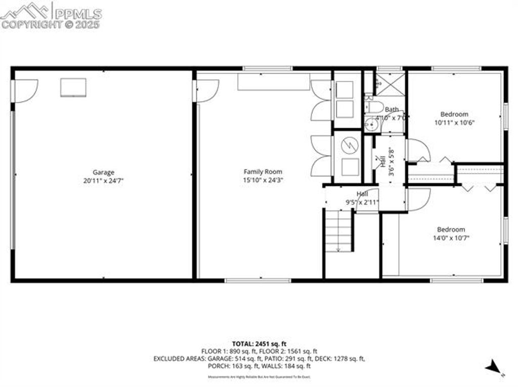
Welcome Home! Discover this stunning split-level home perfectly situated on a spacious corner lot that backs directly to Wilson Park, just moments from Wilson Elementary, shopping, and dining. Step inside and be greeted by an abundance of natural light that fills every corner of the home. The inviting living room features a cozy wood-burning fireplace, perfect for those crisp Colorado evenings, and charming arched openings that flow seamlessly into the oversized kitchen. From the kitchen, enjoy easy access to a solid wood deck, ideal for morning coffee or weekend barbecues. The generous dining area includes a stylish built-in niche and offers a second walk-out to the expansive deck, creating a perfect indoor-outdoor living experience. Need a workspace? A private office area just off the dining room provides the perfect spot for remote work or study. The backyard is truly a showstopper with breathtaking views of Pikes Peak, a lower entertaining deck complete with a bar and seating area, and plenty of space to relax or host friends under the Colorado sky. Inside, the main-level primary bedroom offers a private pocket door leading to the adjoining bath. A second bedroom upstairs and two additional bedrooms on the lower level provide plenty of room for everyone. The spacious family room downstairs is perfect for movie nights and includes a convenient laundry closet and second bathroom. Additional highlights include luxury vinyl plank flooring throughout, with original hardwoods preserved under the upper-level bedrooms, living room, and kitchen. This home combines comfort, charm, and convenience in one incredible package. Don't miss your chance to see it in person!
Property Type(s):
Single Family
Last Updated | 10/14/2025 | Year Built | 1967 |
---|---|---|---|
Community | Austin Estates | Garage Spaces | 2.0 |
County | El Paso |
SCHOOLS
School District | Colorado Springs 11 |
---|
Additional Details
AIR | Ceiling Fan(s) |
---|---|
AIR CONDITIONING | Yes |
AREA | Austin Estates |
CONSTRUCTION | Frame, Wood Siding |
FIREPLACE | Yes |
GARAGE | Yes |
HEAT | Forced Air |
LOT | 8799 sq ft |
LOT DESCRIPTION | Corner Lot |
PARKING | Attached |
STORIES | 2 |
STYLE | Bi-level |
TAXES | 1550.21 |
VIEW | Yes |
Location
Contact us about this Property
/ | |
We respect your online privacy and will never spam you. By submitting this form with your telephone number you are consenting for Mike Casey to contact you even if your name is on a Federal or State "Do not call List". |
Listing provided by: EXIT Realty DTC, Cherry Creek, Pikes Peak, 3037907200
The real estate listing information and related content displayed on this site is provided exclusively for consumers’ personal, non-commercial use and may not be used for any purpose other than to identify prospective properties consumers may be interested in purchasing. This information and related content is deemed reliable but is not guaranteed accurate by the Pikes Peak REALTOR® Services Corp.
This IDX solution is (c) Diverse Solutions 2025.