|
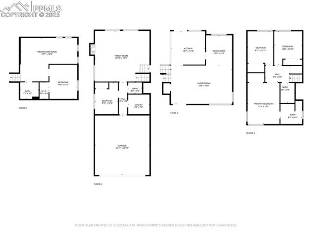
Nestled between the scenic mountain foothills and Quail Lake on the desirable west side, this home offers comfort, space, and functionality. The main level features the living room and dining room and kitchen, perfect for everyday living and entertaining. The French doors from the kitchen open directly to the back patio, ideal for enjoying Colorado's sunny days in the sprawling backyard. Enjoy evenings in the family room featuring an electric fireplace and for those warm days the attic fan will keep you cool. The lower level bedroom is perfect for a home office or guest and is close to the powder room. While the upstairs, you'll find a spacious primary bedroom with an attached bath and walk-in closet. A full bath, and 2 additional bedrooms finish off the upper level. The finished basement offers you additional living space with a generous rec room a large 5th bedroom and a full bath. The backyard is a true retreat, featuring mature trees, tiered retaining wall, shed and patio"”perfect for relaxing or entertaining year-round. Fresh exterior paint gives this home beautiful curb appeal. This west-side gem is spacious and offers you a great opportunity to make it your own.
Property Type(s):
Single Family
| Last Updated | 11/3/2025 | Year Built | 1973 |
|---|---|---|---|
| Community | M J Brock | Garage Spaces | 2.0 |
| County | El Paso |
SCHOOLS
| School District | Harrison-2 |
|---|
Price History
| Prior to Nov 3, '25 | $450,000 |
|---|---|
| Nov 3, '25 - Today | $440,000 |
Additional Details
| AIR | Other |
|---|---|
| AIR CONDITIONING | Yes |
| AREA | M J Brock |
| BASEMENT | Finished, Full, Yes |
| CONSTRUCTION | Masonite |
| FIREPLACE | Yes |
| GARAGE | Yes |
| HEAT | Forced Air, Natural Gas |
| LOT | 8638 sq ft |
| LOT DESCRIPTION | Level |
| PARKING | Garage Door Opener, Attached |
| STORIES | 3+ |
| STYLE | 4-Levels |
| TAXES | 1765.83 |
Location
Contact us about this Property
| / | |
| We respect your online privacy and will never spam you. By submitting this form with your telephone number you are consenting for Mike Casey to contact you even if your name is on a Federal or State "Do not call List". | |
Listing provided by: REMAX PROPERTIES, 7195488600
The real estate listing information and related content displayed on this site is provided exclusively for consumers’ personal, non-commercial use and may not be used for any purpose other than to identify prospective properties consumers may be interested in purchasing. This information and related content is deemed reliable but is not guaranteed accurate by the Pikes Peak REALTOR® Services Corp.

This IDX solution is (c) Diverse Solutions 2025.