|
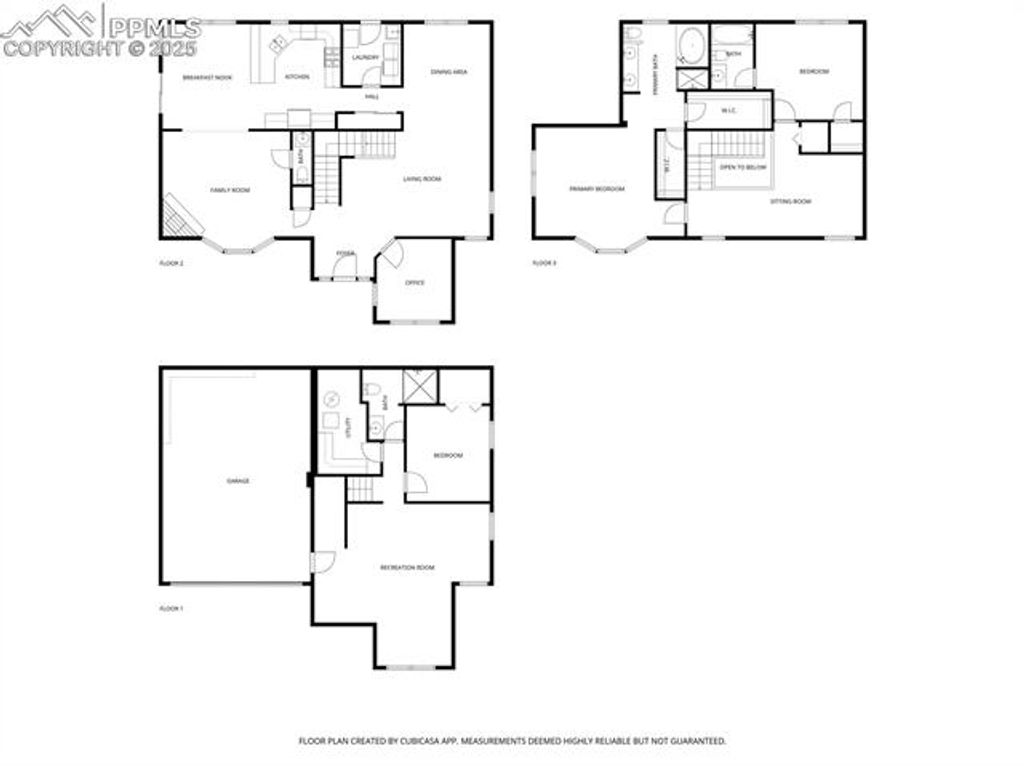
Welcome this amazing Colorado home! Nestled among mature Ponderosa pines in the desirable Pinecliff neighborhood, this home offers privacy, mountain views, and the perfect blend of nature and convenience. Enjoy ever-changing views of Pikes Peak and daily visits from wildlife. Relax in the west-facing gazebo at sunset or on the terraced back patio and garden beds. Soak in the hot tub after riding nearby Ute Valley Park. Oversized double-hung windows capture natural light and views, while 10' ceilings, crown molding, tall baseboards, and chair rails showcase custom craftsmanship. A private office offers charm and function. The kitchen and breakfast nook are warm and inviting with custom pantry pull-outs and lower cabinet drawers for easy storage. Upstairs, the primary suite is a true retreat with vaulted ceilings, & a bay window overlooking Pikes Peak. The attached bath has heated tile floor, two walk-in closets, and a five-piece bath with a jetted tub. The upper landing flex space is perfect for a reading nook or second office. A secondary bedroom includes a walk-in closet, private bath, and views of the natural rock formations which border the rear of the property & offer seclusion and privacy. On the lower level you'll find a sunny bedroom, adjacent bath, workshop/storage, and unfinished space ready for your home gym, theater, or expansion. The garage, also on this level, includes ample storage and the controls for the paid-off solar panels. The Pinecliff neighborhood offers sidewalks, pocket parks, and trail access into Ute Valley Park. The voluntary HOA brings neighbors together for recycling, beautification projects, and seasonal events. Conveniently located near Garden of the Gods Rd and I-25, you'll enjoy easy access to shopping, dining, and amenities while feeling tucked away in nature. This one-of-a-kind property combines thoughtful design, community spirit, and Colorado's natural beauty"”an ideal balance of retreat and accessibility.
Property Type(s):
Single Family
Last Updated | 10/9/2025 | Year Built | 1997 |
---|---|---|---|
Community | Pinecliff | Garage Spaces | 2.0 |
County | El Paso |
SCHOOLS
School District | Academy-20 |
---|
Additional Details
AIR | Ceiling Fan(s), Central Air |
---|---|
AIR CONDITIONING | Yes |
AREA | Pinecliff |
BASEMENT | Partial, Yes |
CONSTRUCTION | Wood Siding |
FIREPLACE | Yes |
GARAGE | Yes |
HEAT | Forced Air, Natural Gas, Radiant |
LOT | 0.33 acre(s) |
LOT DESCRIPTION | Sloped, Wooded |
PARKING | Attached |
STORIES | 2 |
STYLE | 2 Levels |
TAXES | 2377.48 |
VIEW | Yes |
VIEW DESCRIPTION | Mountain(s) |
Location
Contact us about this Property
/ | |
We respect your online privacy and will never spam you. By submitting this form with your telephone number you are consenting for Mike Casey to contact you even if your name is on a Federal or State "Do not call List". |
Listing provided by: O'Boyle Real Estate Group, 7195767373
The real estate listing information and related content displayed on this site is provided exclusively for consumers’ personal, non-commercial use and may not be used for any purpose other than to identify prospective properties consumers may be interested in purchasing. This information and related content is deemed reliable but is not guaranteed accurate by the Pikes Peak REALTOR® Services Corp.
This IDX solution is (c) Diverse Solutions 2025.