|
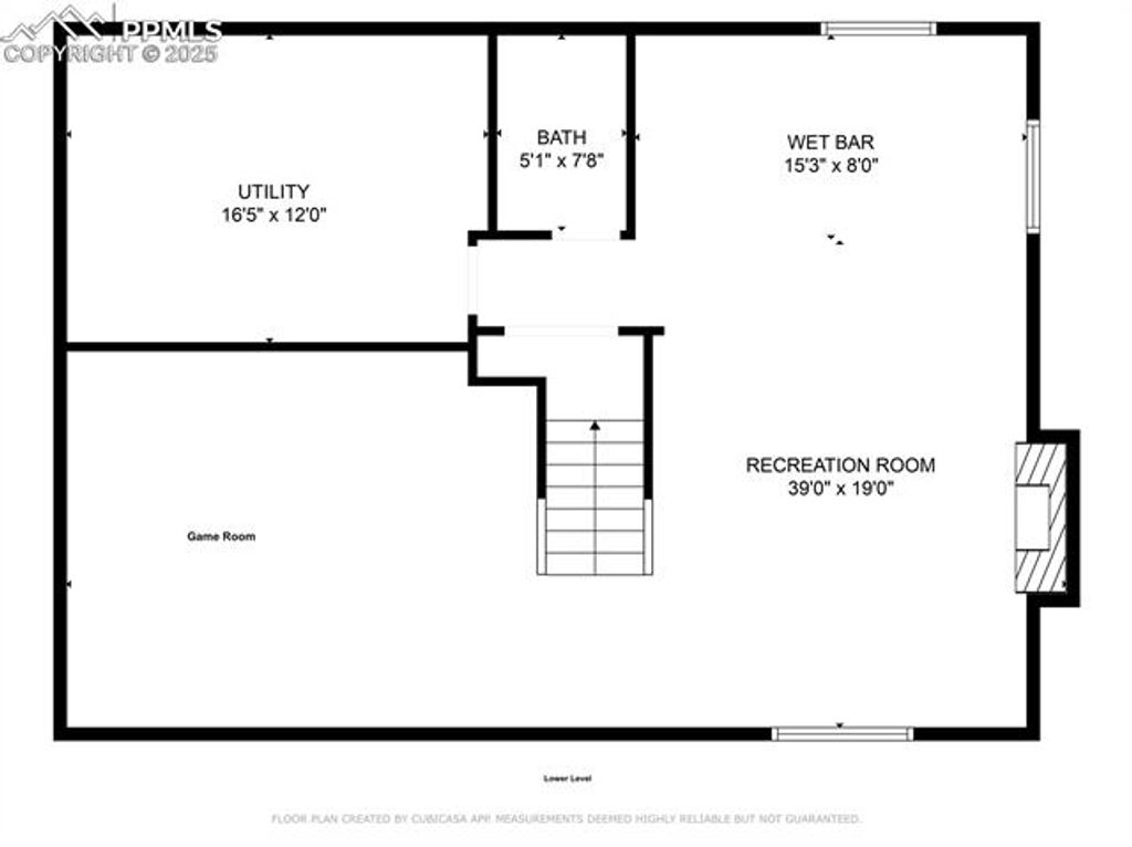
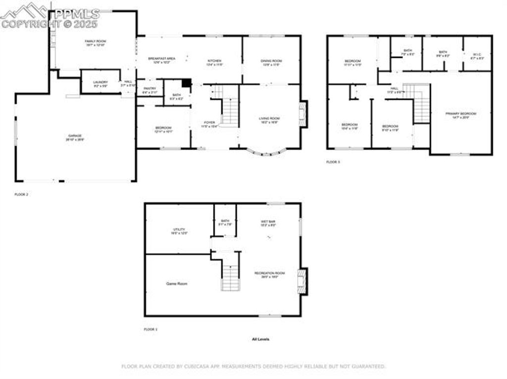
Welcome to the desirable Country Broadmoor neighborhood in Cheyenne Mountain School District 12. This spacious home features 4 bedrooms, 4 bathrooms, and a 3-car attached garage, all situated on a generous lot at the end of a quiet cul-de-sac. Conveniently located near shopping, dining, and other amenities.The main level offers an office, family room with fireplace, living room with fireplace, dining room, kitchen with breakfast area with a walk-out to the back patio, a half bath, and a laundry area. Upstairs you'll find 4 bedrooms, 1 full bathroom, and a primary en suite 3/4 bathroom. The lower level provides a recreation room with fireplace, game room, wet bar, full bathroom, and utility/storage space. Opportunity is knocking in District 12! Perfect for investors, renovators, or savvy buyers ready to add their personal touch.
Property Type(s):
Single Family
Last Updated | 10/9/2025 | Year Built | 1982 |
---|---|---|---|
Community | Country Broadmoor | Garage Spaces | 3.0 |
County | El Paso |
SCHOOLS
School District | Cheyenne Mtn-12 |
---|
Price History
Prior to Sep 30, '25 | $599,999 |
---|---|
Sep 30, '25 - Oct 9, '25 | $574,999 |
Oct 9, '25 - Today | $549,999 |
Additional Details
AIR | Ceiling Fan(s) |
---|---|
AIR CONDITIONING | Yes |
AREA | Country Broadmoor |
BASEMENT | Full, Yes |
CONSTRUCTION | Wood Siding |
FIREPLACE | Yes |
GARAGE | Yes |
HEAT | Forced Air |
LOT | 0.4642 acre(s) |
LOT DESCRIPTION | Cul-de-sac, Level |
PARKING | Attached |
STORIES | 2 |
STYLE | 2 Levels |
TAXES | 3025.56 |
VIEW | Yes |
VIEW DESCRIPTION | Mountain(s) |
Location
Contact us about this Property
/ | |
We respect your online privacy and will never spam you. By submitting this form with your telephone number you are consenting for Mike Casey to contact you even if your name is on a Federal or State "Do not call List". |
Listing provided by: REMAX PROPERTIES, 7195488600
The real estate listing information and related content displayed on this site is provided exclusively for consumers’ personal, non-commercial use and may not be used for any purpose other than to identify prospective properties consumers may be interested in purchasing. This information and related content is deemed reliable but is not guaranteed accurate by the Pikes Peak REALTOR® Services Corp.
This IDX solution is (c) Diverse Solutions 2025.